Зарегистрироваться /

Аренда квартиры ул. Нижний Вал 17/8 в Киеве / W-7429843

9-комнатная квартира
Цена:
233 000* грн.
/месяц
$
5 400 $ (1$ = 43.25 грн.)
4 540 € (1€ = 51.4 грн.)
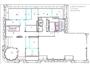
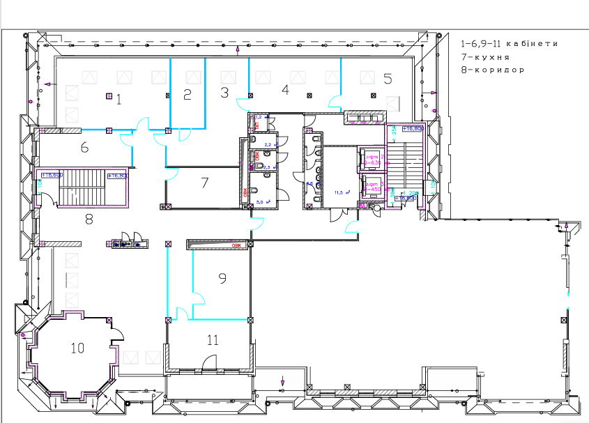
Без комісії! Офіс з генератором у центрі Подолу. Вільний з 1 лютого! Пропонується в оренду офісне приміщення площею 415 м² у бізнес-центрі за адресою м. Київ, вул. Нижній Вал, 17/8. Офіс розташований на 6-му поверсі. Планування: 8 кабінетів, переговорна кімната, велика тераса, кухня, свої с/в. Технічне оснащення та безпека: Центральна система вентиляції та кондиціювання Пожежна та охоронна сигналізації Відеоспостереження СКД у будівлі Фізична охорона Генератор — при відключеннях електроенергії працює все Додатково: Велике паркування Зручна локація в діловому центрі Подолу Комунальні послуги та експлуатаційні витрати оплачуються окремо.
Скачать .pdf

Посредник

ALAN

Обновлено: 2 Февраля 2026
Код объекта: W-7429843
CAPTCHA CAPTCHA на основе изображений
Введите символы, изображенные на рисунке.

Пожаловаться на объявление

W-7429843 |

Укажите причину жалобы

Максимальное количество символов 500
CAPTCHA CAPTCHA на основе изображений
Введите символы, изображенные на рисунке.