Зарегистрироваться /

Аренда Офиса Соборности просп. (Воссоединения) 30а в Киеве / W-7429757

Коммерческая недвижимость
Цена:
17 000 грн.
/месяц
$
401 $ (1$ = 42.3 грн.)
341 € (1€ = 49.85 грн.)
Профиль:
Площадь:
45 м²
Цена за м²:
377 грн.
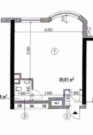
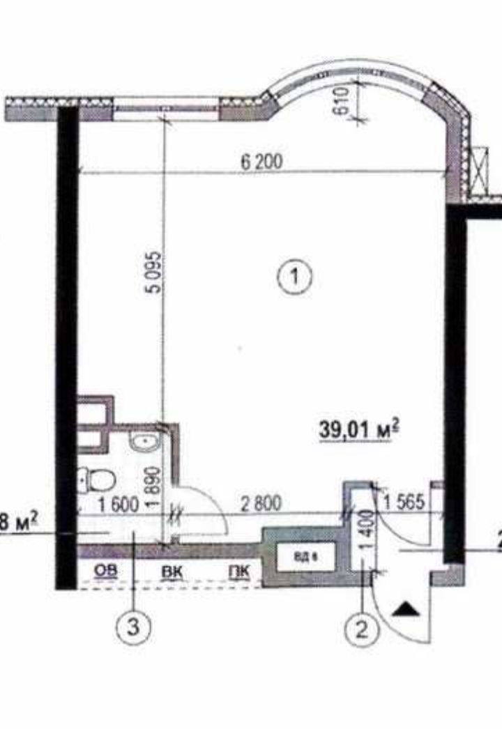
Соборності просп 30А, офіс 2 поверх не житловий фонд, 1 кабінет з с/в,44м добрий стан, кондіционер,вільний доступ 24/7, електро опалення,метро Лівобережна 15хв 17000грн + комунальні.(Комісія 50%)
Скачать .pdf

Посредник

Олександр

Обновлено: 29 Декабря 2025
Код объекта: W-7429757
CAPTCHA CAPTCHA на основе изображений
Введите символы, изображенные на рисунке.

Пожаловаться на объявление

W-7429757 |

Укажите причину жалобы

Максимальное количество символов 500
CAPTCHA CAPTCHA на основе изображений
Введите символы, изображенные на рисунке.

Схожі оголошення