Зарегистрироваться /

Продажа квартиры ул. Закревского Николая 95а в Киеве / W-7429286

3-комнатная квартира
Цена:
3 805 000* грн.
$
87 500 $ (1$ = 43.48 грн.)
74 800 € (1€ = 50.85 грн.)
Жилой комплекс:
Кол-во комнат:
Площадь (общая):
93
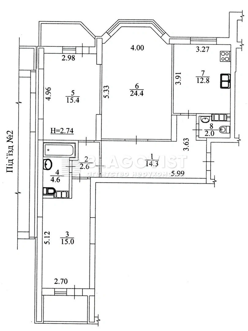
Продаємо простору 3-кімнатну квартиру в ЖК «Милославичі». Квартира знаходиться у сучасному монолітно-каркасному будинку. Будинок має доглянуте парадне з консьєржем, а для зручності мешканців працюють три ліфти, включаючи вантажний. Квартира розташована на 20-му поверсі, вона двостороння, не кутова і дуже тепла. Житло пропонується без ремонту, у стані після будівельників. Це ідеальна можливість реалізувати власний дизайн, не переплачуючи за чуже оздоблення. Інфраструктура району розвинена Закревського Миколи, 95а, Милославичі; АППС-люкс; стіни: керамзито-бетон; перекриття: залізобетон; поверховість: 22; гараж; ліфт; ЖК"Милославичі", біля дороги, зручне розташування, чисті пїдїзди, 3 ліфти, консьєрж, кодовий замок, безкоштовна парковка у дворі, у будинку аптека, поруч ліцей 293, дитячий садок 811, зупинка трамваю 28, 28д, 5., поруч школа, супермаркет, фітнес-центр, ТРЦ "Район", кінотеатр "Флоренція". • 3-, 20-й поверх, площа: 93,9\54,8\12,8; . Ціна: 88 000 USD
Скачать .pdf

Посредник

Александр

Обновлено: 12 Января 2026
Код объекта: W-7429286
CAPTCHA CAPTCHA на основе изображений
Введите символы, изображенные на рисунке.

Пожаловаться на объявление

W-7429286 |

Укажите причину жалобы

Максимальное количество символов 500
CAPTCHA CAPTCHA на основе изображений
Введите символы, изображенные на рисунке.

Схожі оголошення

  • Продажа квартиры Красной Калины просп (Маяковского Владимира просп.) 49а в Киеве / F-48549 (Красной Калины просп (Маяковского Владимира просп.), 49а) 3 696 000* грн.

    Продажа квартиры Красной Калины просп (Маяковского Владимира просп.) 49а в Киеве / F-48549

  • Продажа квартиры ул. Лаврухина Николая 12 в Киеве / Q-3575 (ул. Лаврухина Николая, 12) 4 000 000* грн.

    Продажа квартиры ул. Лаврухина Николая 12 в Киеве / Q-3575

  • Продажа квартиры Высоцкого Владимира бульв. 6 в Киеве / Q-16017 (Высоцкого Владимира бульв., 6) 3 478 000* грн.

    Продажа квартиры Высоцкого Владимира бульв. 6 в Киеве / Q-16017

  • Продажа квартиры Красной Калины просп (Маяковского Владимира просп.) 49а в Киеве / W-7425666 (Красной Калины просп (Маяковского Владимира просп.), 49а) 3 913 000* грн.

    Продажа квартиры Красной Калины просп (Маяковского Владимира просп.) 49а в Киеве / W-7425666

  • Продажа квартиры ул. Будищанская 5 в Киеве / W-7422754 (ул. Будищанская, 5) 3 435 000* грн.

    Продажа квартиры ул. Будищанская 5 в Киеве / W-7422754

  • Продажа квартиры ул. Милославская 4 в Киеве / Q-27955 (ул. Милославская, 4) 4 044 000* грн.

    Продажа квартиры ул. Милославская 4 в Киеве / Q-27955

  • Продажа квартиры ул. Лаврухина Николая 7 в Киеве / G-1942458 (ул. Лаврухина Николая, 7) 4 131 000* грн.

    Продажа квартиры ул. Лаврухина Николая 7 в Киеве / G-1942458

  • Продажа квартиры ул. Милославская 16 в Киеве / G-1901267 (ул. Милославская, 16) 3 739 000* грн.

    Продажа квартиры ул. Милославская 16 в Киеве / G-1901267

  • Продажа квартиры ул. Лаврухина Николая 7 в Киеве / W-7429814 (ул. Лаврухина Николая, 7) 3 826 000* грн.

    Продажа квартиры ул. Лаврухина Николая 7 в Киеве / W-7429814

  • Продажа квартиры Красной Калины просп (Маяковского Владимира просп.) 69 в Киеве / W-7380513 (Красной Калины просп (Маяковского Владимира просп.), 69) 3 426 000* грн.

    Продажа квартиры Красной Калины просп (Маяковского Владимира просп.) 69 в Киеве / W-7380513

  • Продажа квартиры ул. Кубанской Украины Жукова Маршала 31а в Киеве / Q-29910 (ул. Кубанской Украины Жукова Маршала, 31а) 3 478 000* грн.

    Продажа квартиры ул. Кубанской Украины Жукова Маршала 31а в Киеве / Q-29910

  • Продажа квартиры ул. Милютенко 28а в Киеве / R-53606 (ул. Милютенко, 28а) 3 696 000* грн.

    Продажа квартиры ул. Милютенко 28а в Киеве / R-53606