Зарегистрироваться /

Аренда Офиса Гавела Вацлава бульв. (Лепсе Ивана) в Киеве / W-7428691

Коммерческая недвижимость
Цена:
357 000* грн.
/месяц
$
8 400 $ (1$ = 42.49 грн.)
7 150 € (1€ = 49.95 грн.)
Кол-во комнат:
12
Профиль:
Площадь:
700 м²
Этаж:
2
Цена за м²:
509 грн.
Ремонт (состояние):
с ремонтом
Парковка:
да
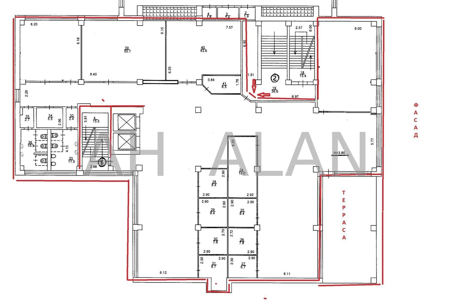
Оренда офісу в Солом'янському районі, метро Берестейська 15 хвилин. Площа 700 кв.м, вісота стелі 3,8 м, на другому поверсі Бізнес-центру. Приміщення з дизайнерським ремонтом, облаштоване системами вентиляції і кондиціонування, протипожежною та охоронною сигналізацією, електрогенератором, має окремі входи і виходи, власну тераса. Планування: зони відкритого простору, кабінети, переговорні кімнати, мебльована кухня, санвузли. Офісні меблі за потребою. БЦ має сучасне бомбосховище та безперебійні системи енергозабеспечення. Велика зона парковки. Вартість вказана без ПДВ, додатково - комунальні послуг. Код оголошення RC-219-545.
Скачать .pdf

Посредник

Alan

Обновлено: 19 Декабря 2025
Код объекта: W-7428691
CAPTCHA CAPTCHA на основе изображений
Введите символы, изображенные на рисунке.

Пожаловаться на объявление

W-7428691 |

Укажите причину жалобы

Максимальное количество символов 500
CAPTCHA CAPTCHA на основе изображений
Введите символы, изображенные на рисунке.

Схожі оголошення