Зарегистрироваться /

Аренда Офиса ул. Гетьмана Вадима (Индустриальная) 6 в Киеве / W-7427767

Коммерческая недвижимость
Цена:
895 000* грн.
/месяц
$
21 000 $ (1$ = 42.6 грн.)
17 900 € (1€ = 50.1 грн.)
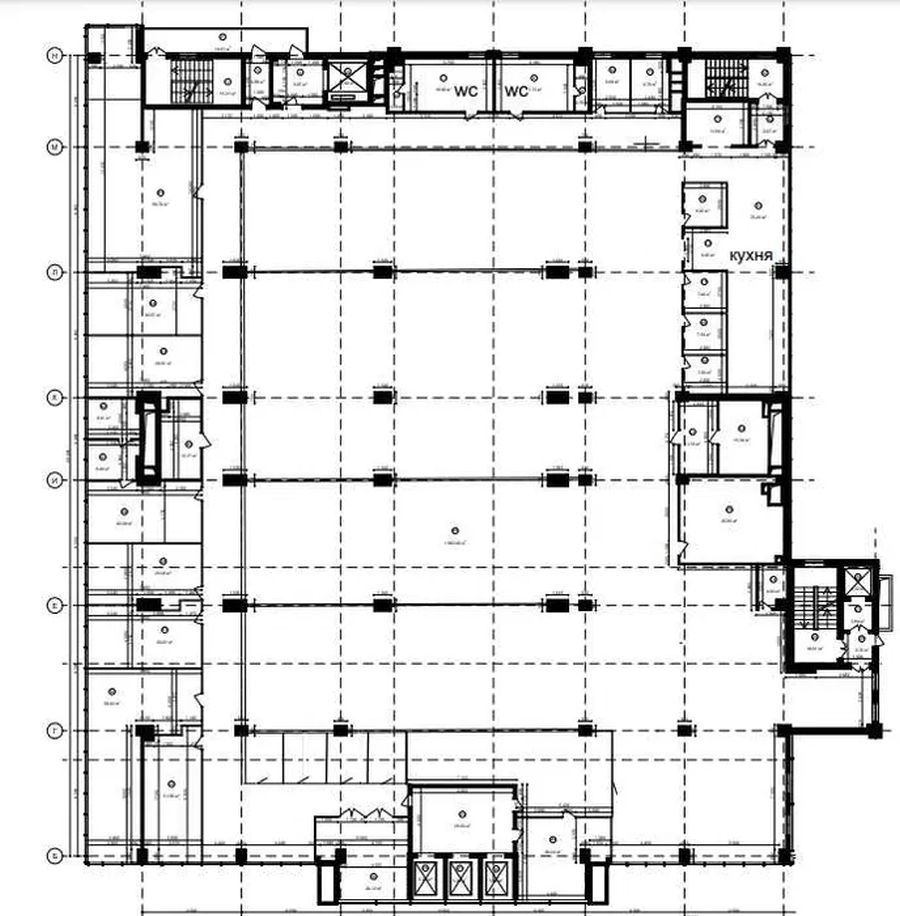
При отключении подачи централизованного электричества, есть возможность подключить дизельный генератор, который обеспечит комфортную, бесперебойную работу офиса !!! Бизнес центр Соsmo, на базе торгово-развлекательного комплекса Соsmo multimoll, предлагает офисные помещения с ремонтом Лофт и развитой инфраструктурой. Адрес: В. Гетьмана, 6, до М. Шулявка, 7 минут пеше. Арендаторы могут пользоваться большим паркингом, ресторанами, кафе. В здании имеется комплекс из самых больших конференц залов в Киеве, а также отель, для размещения гостей и партнеров. Предлагаем офисное помещение, которое размещено на 7 этаже и занимает 2100 кв.м. Открытая планировка с оборудованными рабочими зонами, комнаты переговоров, отдельные кабинеты, зона рецепции, просторная оборудованная кухня, 2 больших сан. узла, гардеробная. Арендная ставка - 4 долл/кв.метр + НДС Орех - 6 долл/кв.метр + НДС Коммунальные оплачиваются отдельно.
Скачать .pdf

Посредник

Ярослав

Обновлено: 18 Декабря 2025
Код объекта: W-7427767
CAPTCHA CAPTCHA на основе изображений
Введите символы, изображенные на рисунке.

Пожаловаться на объявление

W-7427767 |

Укажите причину жалобы

Максимальное количество символов 500
CAPTCHA CAPTCHA на основе изображений
Введите символы, изображенные на рисунке.

Схожі оголошення