Зарегистрироваться /

Аренда Офиса ул. Щербаковского Даниила (Щербакова) 45 в Киеве / W-7425664

Коммерческая недвижимость
Цена:
56 500 грн.
/месяц
$
1 330 $ (1$ = 42.32 грн.)
1 140 € (1€ = 49.8 грн.)
Профиль:
Площадь:
117 м²
Цена за м²:
483 грн.
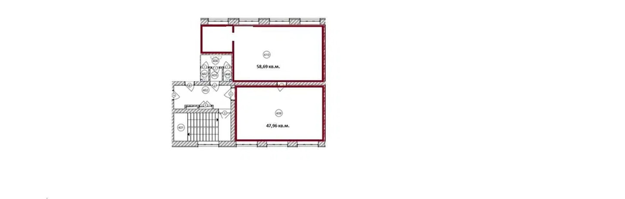
Офіс в оренду в бізнес центрі "Євротаун'', вул. Щербаківського, 45А, Шевченківський район Києва. Бізнес центр розташований в 3х хвилинах від ЖК "Файна Таун". У пішій доступності стація метро "Нивки" Офіс розташований на 4му поверсі Площа: 106,65 кв.м. + коефіцієнт 10% Офіс з ремонтом та кухнею. Оснащення: - приточно-витяжна вентиляція; - централізоване опалення; - оптоволоконні лінії зв'язку; - протипожежна система; - цілодобова фізична охорона; - відеоспостереження; - паркінг - 50 місць; - генератор. Умови оренди: Вартість орендної ставки - 400 грн/м2 + ПДВ ОРЕХ - 82 грн/м2 + ПДВ + 10% - BOMA (коефіцієнт загальних площ) + комунальні 56543грн
Скачать .pdf

Посредник

Ярослав

Обновлено: 23 Декабря 2025
Код объекта: W-7425664
CAPTCHA CAPTCHA на основе изображений
Введите символы, изображенные на рисунке.

Пожаловаться на объявление

W-7425664 |

Укажите причину жалобы

Максимальное количество символов 500
CAPTCHA CAPTCHA на основе изображений
Введите символы, изображенные на рисунке.

Схожі оголошення