Зарегистрироваться /

Продажа квартиры ул. Коновальца Евгения (Щорса) 32б в Киеве / W-7423986

3-комнатная квартира
Цена:
17 320 000* грн.
$
400 000 $ (1$ = 43.3 грн.)
340 000 € (1€ = 51 грн.)
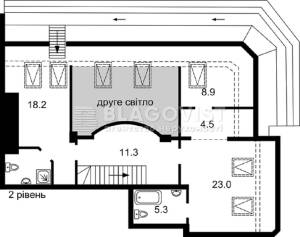
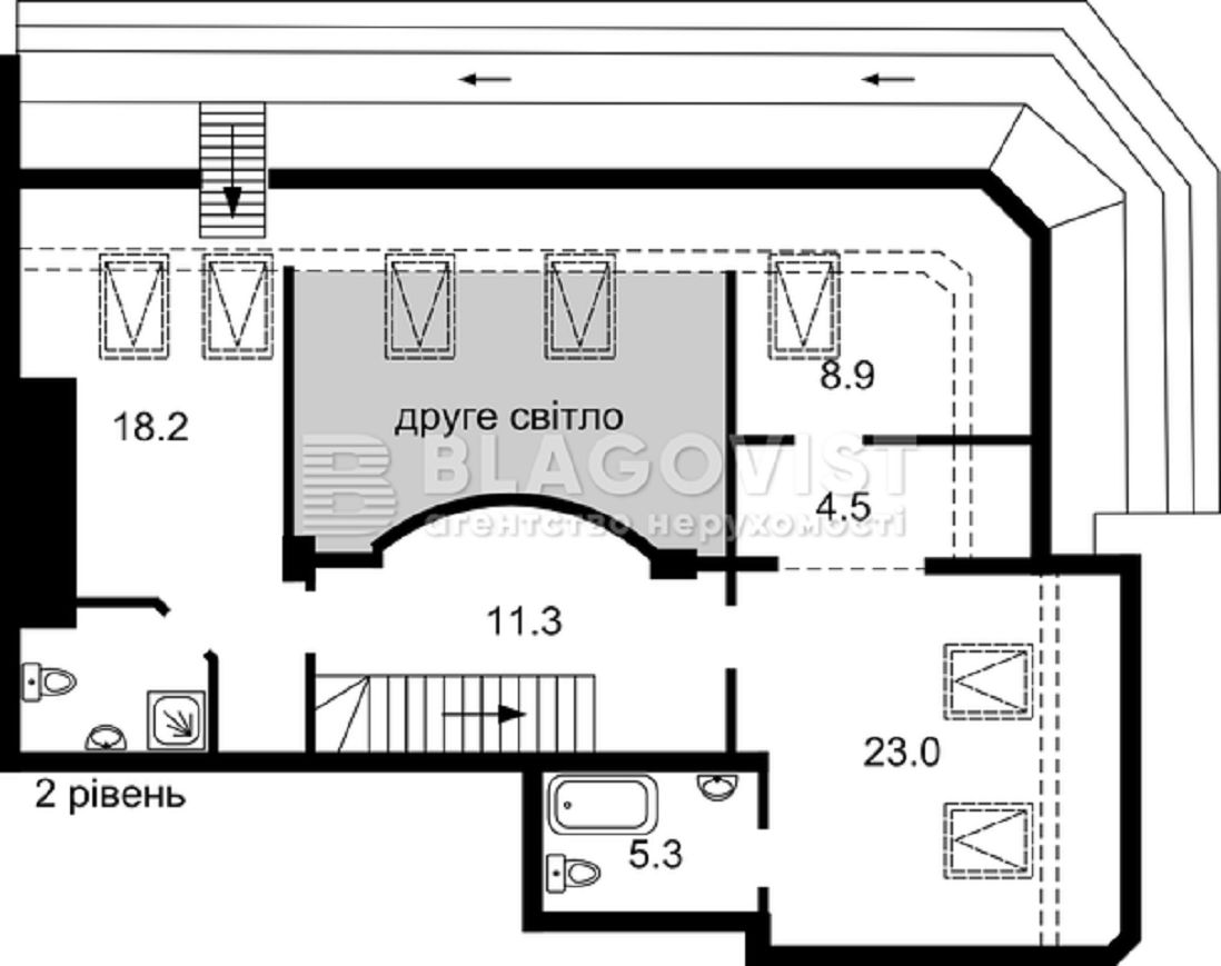
• 3р, 15-й поверх, площа: 190,0\80,3\45,5; Квартира видова, якісний ремонт, гардеробна, 3 спальні, чудова локація, дворівнева на 15-16 поверсі. В гарному стані , є все потрібне. Вбудована кухня , вся техника, бойлер. ЖК "Митець" будинок 2006р., Н=3м, під'їзди з ремонтом, охорона, відеоспостереження, консьєрж. 2 ліфти. поруч ресторани, салони краси, банк, спортклуб, магазини, є підземний паркінг. Супермаркет "Велика Кишеня", Національний університет Культури та мистецтв, "Печерська", "Палац Україна". Ціна: 400 000 USD
Скачать .pdf

Посредник

Наталія Єгорівна

Обновлено: 29 Декабря 2025
Код объекта: W-7423986
CAPTCHA CAPTCHA на основе изображений
Введите символы, изображенные на рисунке.

Пожаловаться на объявление

W-7423986 |

Укажите причину жалобы

Максимальное количество символов 500
CAPTCHA CAPTCHA на основе изображений
Введите символы, изображенные на рисунке.

Схожі оголошення

  • Продажа квартиры ул. Иоанна Павла II (Лумумбы Патриса) 12 корпус 2 в Киеве / J-35258 (ул. Иоанна Павла II (Лумумбы Патриса), 12 корпус 2) 15 780 000* грн.

    Продажа квартиры ул. Иоанна Павла II (Лумумбы Патриса) 12 корпус 2 в Киеве / J-35258

  • Продажа квартиры ул. Федорова Ивана 2а в Киеве / D-39821 (ул. Федорова Ивана, 2а) 18 620 000* грн.

    Продажа квартиры ул. Федорова Ивана 2а в Киеве / D-39821

  • Продажа квартиры ул. Бойчука Михаила (Киквидзе) 19а в Киеве / Q-8624 (ул. Бойчука Михаила (Киквидзе), 19а) 18 400 000* грн.

    Продажа квартиры ул. Бойчука Михаила (Киквидзе) 19а в Киеве / Q-8624

  • Продажа квартиры ул. Ломаковская (Мичурина) 19б в Киеве / H-50321 (ул. Ломаковская (Мичурина), 19б) 17 220 000* грн.

    Продажа квартиры ул. Ломаковская (Мичурина) 19б в Киеве / H-50321

  • Продажа квартиры ул. Левандовская (Анищенко) 5 в Киеве / R-15693 (ул. Левандовская (Анищенко), 5) 15 590 000* грн.

    Продажа квартиры ул. Левандовская (Анищенко) 5 в Киеве / R-15693

  • Продажа квартиры ул. Тютюнника Василия (Барбюса Анри) 28а в Киеве / R-41499 (ул. Тютюнника Василия (Барбюса Анри), 28а) 17 970 000* грн.

    Продажа квартиры ул. Тютюнника Василия (Барбюса Анри) 28а в Киеве / R-41499

  • Продажа квартиры ул. Крещатик 23 в Киеве / L-31031 (ул. Крещатик, 23) 16 840 000* грн.

    Продажа квартиры ул. Крещатик 23 в Киеве / L-31031

  • Продажа квартиры ул. Болсуновская (Струтинского Сергея) 2 в Киеве / W-7338828 (ул. Болсуновская (Струтинского Сергея), 2) 19 050 000* грн.

    Продажа квартиры ул. Болсуновская (Струтинского Сергея) 2 в Киеве / W-7338828

  • Продажа квартиры ул. Верхогляда Андрея (Драгомирова Михаила) 19а в Киеве / W-7428038 (ул. Верхогляда Андрея (Драгомирова Михаила), 19а) 18 620 000* грн.

    Продажа квартиры ул. Верхогляда Андрея (Драгомирова Михаила) 19а в Киеве / W-7428038

  • Продажа квартиры ул. Тютюнника Василия (Барбюса Анри) 37/1 в Киеве / P-25999 (ул. Тютюнника Василия (Барбюса Анри), 37/1) 17 150 000* грн.

    Продажа квартиры ул. Тютюнника Василия (Барбюса Анри) 37/1 в Киеве / P-25999

  • Продажа квартиры Музейный пер. 2а в Киеве / C-110680 (Музейный пер., 2а) 18 900 000* грн.

    Продажа квартиры Музейный пер. 2а в Киеве / C-110680

  • Продажа квартиры ул. Верхогляда Андрея (Драгомирова Михаила) 16 в Киеве / W-7432670 (ул. Верхогляда Андрея (Драгомирова Михаила), 16) 16 450 000* грн.

    Продажа квартиры ул. Верхогляда Андрея (Драгомирова Михаила) 16 в Киеве / W-7432670