Зарегистрироваться /

Продажа квартиры ул. Речная 4 в Киеве / W-7422102

2-комнатная квартира
Цена:
6 784 000* грн.
$
160 000 $ (1$ = 42.4 грн.)
137 000 € (1€ = 49.5 грн.)
Жилой комплекс:
Кол-во комнат:
Площадь (общая):
79
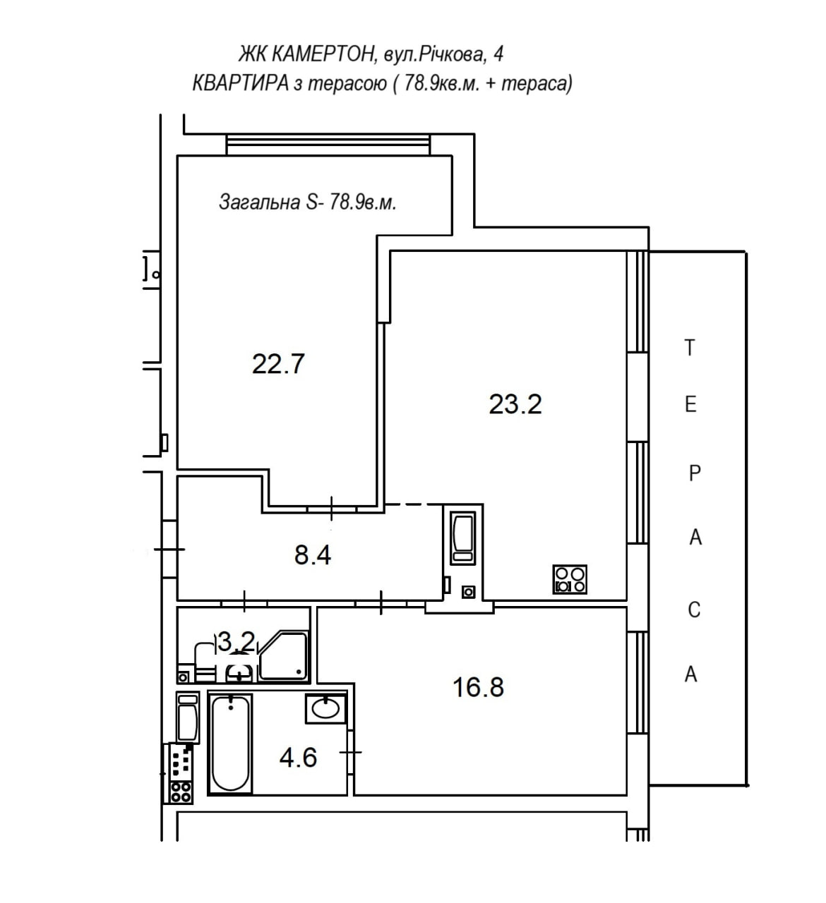
Київ, ПРОДАЖ 2-кімнатної квартири з ТЕРАСОЮ у готовому сучасному будинку бізнес-класу. Загальна -78.9кв.м. Н-3м. ТЕРАСА НЕ входить до загальної площі. ЗАТИШНИЙ ХОЛ ПЕРШОГО ПОВЕРХУ На рівні другого поверху розташований внутрішній парк із ландшафтним дизайном, дитячим майданчиком, WI-FI. Територія розділена на активну та тиху зону.  З поверху на ліфті можна потрапити в підземний паркінг для автомобілів та мотоциклів,  є окремо велопаркування - станція зарядки для автомобілів. Сучасні безшумні ліфти *Kone*   ЗРУЧНЕ РОЗТАШУВАННЯ будинку, звідси легко дістатися будь-якої точки міста. Розвинена інфраструктура. У пішій доступності знайдеться все необхідне  Найближча ст.метро -Лук'янівська, 10-15хв. ходу, ст.м. Вокзальна, Політехнічний Університет...   Будинок введено в експлуатацію, можливість відразу зайти на ремонт. В НАЯВНОСТІ паркомісце / оплата окремо/ Перегляд по домовленості, телефонуйте у будь який час. (Оперативний показ, реальному покупцю).
Скачать .pdf

Посредник

Tatyana

Обновлено: 4 Декабря 2025
Код объекта: W-7422102
CAPTCHA CAPTCHA на основе изображений
Введите символы, изображенные на рисунке.

Пожаловаться на объявление

W-7422102 |

Укажите причину жалобы

Максимальное количество символов 500
CAPTCHA CAPTCHA на основе изображений
Введите символы, изображенные на рисунке.

Схожі оголошення

  • Продажа квартиры ул. Большая Васильковская (Красноармейская) 20 в Киеве / F-47410 (ул. Большая Васильковская (Красноармейская), 20) 6 148 000* грн.

    Продажа квартиры ул. Большая Васильковская (Красноармейская) 20 в Киеве / F-47410

  • Продажа квартиры ул. Белорусская 3 в Киеве / W-7409525 (ул. Белорусская, 3) 6 360 000* грн.

    Продажа квартиры ул. Белорусская 3 в Киеве / W-7409525

  • Продажа квартиры ул. Пимоненко Николая 19 в Киеве / W-7387104 (ул. Пимоненко Николая, 19) 7 420 000* грн.

    Продажа квартиры ул. Пимоненко Николая 19 в Киеве / W-7387104

  • Продажа квартиры ул. Салютная 2 в Киеве / W-7425628 (ул. Салютная, 2) 7 250 000* грн.

    Продажа квартиры ул. Салютная 2 в Киеве / W-7425628

  • Продажа квартиры ул. Глубочицкая 13 в Киеве / K-33396 (ул. Глубочицкая, 13) 6 742 000* грн.

    Продажа квартиры ул. Глубочицкая 13 в Киеве / K-33396

  • Продажа квартиры ул. Черновола Вячеслава 27 в Киеве / W-7391701 (ул. Черновола Вячеслава, 27) 6 148 000* грн.

    Продажа квартиры ул. Черновола Вячеслава 27 в Киеве / W-7391701

  • Продажа квартиры ул. Михайловская 21 в Киеве / W-7421286 (ул. Михайловская, 21) 7 462 000* грн.

    Продажа квартиры ул. Михайловская 21 в Киеве / W-7421286

  • Продажа квартиры ул. Дегтяревская 25е в Киеве / G-832873 (ул. Дегтяревская, 25е) 7 294 000* грн.

    Продажа квартиры ул. Дегтяревская 25е в Киеве / G-832873

  • Продажа квартиры ул. Сечевых Стрельцов (Артема) 40 в Киеве / W-7424256 (ул. Сечевых Стрельцов (Артема), 40) 6 784 000* грн.

    Продажа квартиры ул. Сечевых Стрельцов (Артема) 40 в Киеве / W-7424256

  • Продажа квартиры ул. Хмельницкого Богдана 39 в Киеве / W-7425025 (ул. Хмельницкого Богдана, 39) 6 190 000* грн.

    Продажа квартиры ул. Хмельницкого Богдана 39 в Киеве / W-7425025

  • Продажа квартиры ул. Багговутовская 25 в Киеве / W-7420613 (ул. Багговутовская, 25) 6 784 000* грн.

    Продажа квартиры ул. Багговутовская 25 в Киеве / W-7420613

  • Продажа квартиры ул. Уссурийская 1-9 в Киеве / W-7373214 (ул. Уссурийская, 1-9) 6 148 000* грн.

    Продажа квартиры ул. Уссурийская 1-9 в Киеве / W-7373214