Зарегистрироваться /

Аренда Нежилого помещения ул. Новоконстантиновская 18 в Киеве / W-7421781

Коммерческая недвижимость
Цена:
120 000* грн.
/месяц
$
2 840 $ (1$ = 42.32 грн.)
2 420 € (1€ = 49.8 грн.)
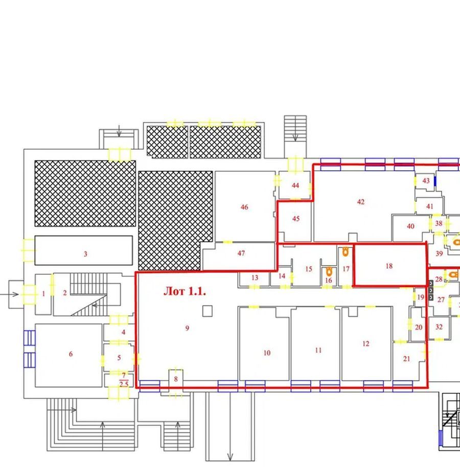
Пропонується комерційне приміщення на першому поверсі з окремим входом у БЦ Ріальто по вулиці Новокостянтинівській, 18. Можливе використання під офіс відкритого типу, нотаріальну контору, клініку, салон краси. Загальна площа - 237 кв.м, два санвузли, висота стелі 3м. Приміщення обладнано системою кондиціонування та вентиляції, пожежною сигналізацією. Потужність по електриці - 30кВт, при відключенні світла працює генератор. У якості бомбосховища використовується підземний паркінг. Орендна плата 12 $ + ПДВ + комунальні 2844дол
Скачать .pdf

Посредник

Юрій

Обновлено: 23 Декабря 2025
Код объекта: W-7421781
CAPTCHA CAPTCHA на основе изображений
Введите символы, изображенные на рисунке.

Пожаловаться на объявление

W-7421781 |

Укажите причину жалобы

Максимальное количество символов 500
CAPTCHA CAPTCHA на основе изображений
Введите символы, изображенные на рисунке.

Схожі оголошення

  • Аренда Нежилого помещения Ивасюка Владимира просп. (Героев Сталинграда просп.) в Киеве / P-33720 (Нежилое помещение, Ивасюка Владимира просп. (Героев Сталинграда просп.)) 114 000* грн./месяц

    Аренда Нежилого помещения Ивасюка Владимира просп. (Героев Сталинграда просп.) в Киеве / P-33720

  • Аренда Торговых площадей Ивасюка Владимира просп. (Героев Сталинграда просп.) 65 в Киеве / W-7428768 (Торговые площади, Ивасюка Владимира просп. (Героев Сталинграда просп.)) 131 000 грн./месяц

    Аренда Торговых площадей Ивасюка Владимира просп. (Героев Сталинграда просп.) 65 в Киеве / W-7428768

  • Аренда Нежилого помещения Ивасюка Владимира просп. (Героев Сталинграда просп.) в Киеве / Q-10040 (Нежилое помещение, Ивасюка Владимира просп. (Героев Сталинграда просп.)) 121 000 грн./месяц

    Аренда Нежилого помещения Ивасюка Владимира просп. (Героев Сталинграда просп.) в Киеве / Q-10040

  • Аренда Офиса Оболонская пл. (Дружбы Народов пл.) в Киеве / W-7186891 (Офис, Оболонская пл. (Дружбы Народов пл.)) 120 000 грн./месяц

    Аренда Офиса Оболонская пл. (Дружбы Народов пл.) в Киеве / W-7186891

  • Аренда Нежилого помещения ул. Героев Днепра в Киеве / Q-23607 (Нежилое помещение, ул. Героев Днепра) 110 000 грн./месяц

    Аренда Нежилого помещения ул. Героев Днепра в Киеве / Q-23607

  • Аренда Офиса Бандеры Степана просп. (Московский просп.) в Киеве / W-7299497 (Офис, Бандеры Степана просп. (Московский просп.)) 120 000 грн./месяц

    Аренда Офиса Бандеры Степана просп. (Московский просп.) в Киеве / W-7299497