Зарегистрироваться /

Аренда Офиса ул. Мазепы Ивана (Январского Восстания) 16 в Киеве / W-7421758

Коммерческая недвижимость
Цена:
80 000 грн.
/месяц
$
1 890 $ (1$ = 42.32 грн.)
1 610 € (1€ = 49.8 грн.)
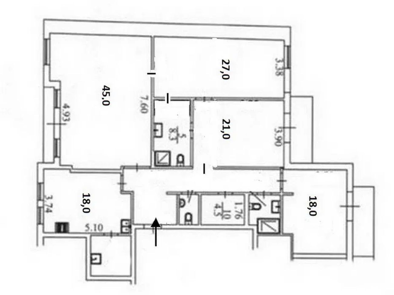
Івана Мазепи, 16. Відмінна локація для бізнесу в центрі. Видовий, просторий офіс 190кв.м. Електрика не відключається. Будинок після повної реконструкції, гарна вхідна група, новий ліфт. Світлий, панорамний офіс, відкрита зона - 50кв. з балконом на готель Салют та Дніпро, ще 3 окремих кабінета, кухня повністю облаштована, 3 с/у, 2 великі засклені лоджіі. Вбудовані меблі, кондиціонери, сигналізація, автономне газове опалення. Закрите парадне, вхід з фасаду та з двору і паркінгу, ліфт двосторонній, закритий двір, паркомісця, автоматичні ворота паркінгу. Поряд вся необхідна інфраструктура; кафе, банки, магазини, парк. Метро Арсенальна 5 хв. Вартість: 80 тис грн. + комунальні 50%комісія
Скачать .pdf

Посредник

Юрій

Обновлено: 23 Декабря 2025
Код объекта: W-7421758
CAPTCHA CAPTCHA на основе изображений
Введите символы, изображенные на рисунке.

Пожаловаться на объявление

W-7421758 |

Укажите причину жалобы

Максимальное количество символов 500
CAPTCHA CAPTCHA на основе изображений
Введите символы, изображенные на рисунке.

Схожі оголошення