Зарегистрироваться /

Аренда Офиса ул. Семьи Праховых (Гайдара) 58 в Киеве / W-7421462

Коммерческая недвижимость
Цена:
379 000 грн.
/месяц
$
8 950 $ (1$ = 42.39 грн.)
7 620 € (1€ = 49.8 грн.)
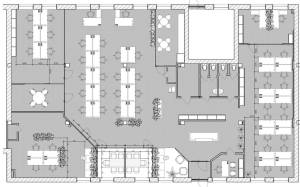
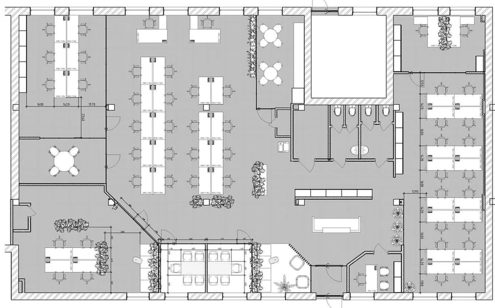
Бізнес парк “Європасаж”, вул. Сім’ї Прахових, 58/10 (1 поверх). Зручне розташування — лише 10 хвилин пішки до двох станцій метро: Олімпійська та Вокзальна. Офіс 372,93 кв.м. + 14% коефіцієнт. Планування: - простора зона open space; - окремі кабінети та переговорні кімнати; - скайпрум, серверна, кухня, WC. Переваги локації: На території бізнес парку — трирівневий критий паркінг на 450 місць, 4 точки харчування, внутрішній двір із зоною відпочинку, 2 тераси, салон краси, арт-студія, конференц-зал, а також паркування з електрозарядками для самокатів та велосипедів. Інженерія будівлі: забезпечено тривала безперебійна робота будівлі у разі відсутності міського електропостачання, автономне опалення, система кондиціювання чилер-фанкойл, вентиляція з передпідготовкою повітря — усе для стабільної роботи команди. 379 313 грн
Скачать .pdf

Посредник

Юрій

Обновлено: 22 Декабря 2025
Код объекта: W-7421462
CAPTCHA CAPTCHA на основе изображений
Введите символы, изображенные на рисунке.

Пожаловаться на объявление

W-7421462 |

Укажите причину жалобы

Максимальное количество символов 500
CAPTCHA CAPTCHA на основе изображений
Введите символы, изображенные на рисунке.

Схожі оголошення