Зарегистрироваться /

Аренда Офиса Леси Украинки бульв. 7б в Киеве / W-7420330

Коммерческая недвижимость
Цена:
106 000* грн.
/месяц
$
2 500 $ (1$ = 42.25 грн.)
2 170 € (1€ = 48.75 грн.)
Жилой комплекс:
Кол-во комнат:
3
Профиль:
Площадь:
155 м²
Тип (серия) дома:
спецпроект 2011-2015 гг.
Этаж/Этажность:
3/18
Цена за м²:
681 грн.
Материал стен:
Кирпич
Ремонт (состояние):
с евроремонтом
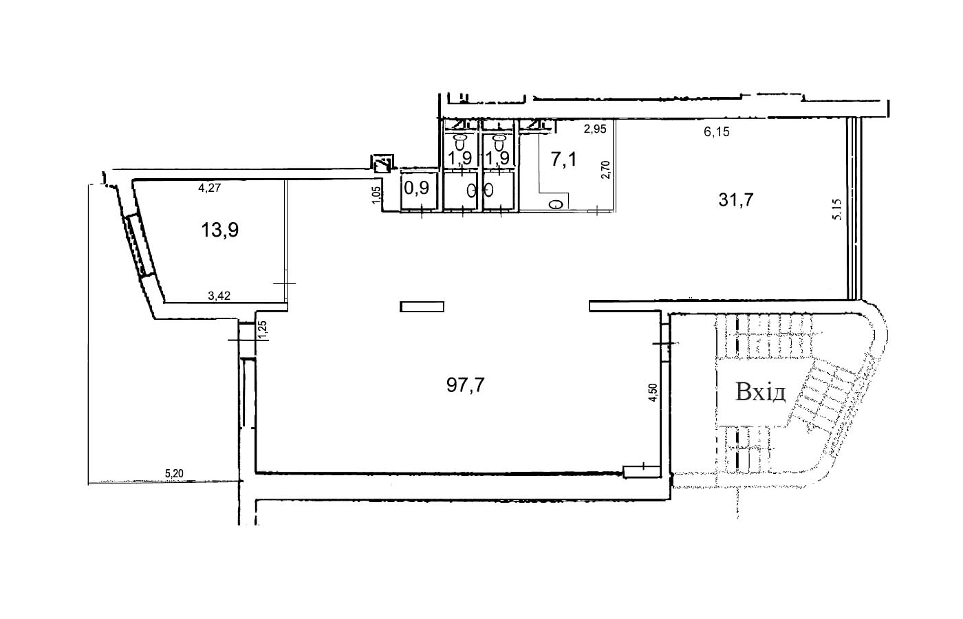
Офіс в оренду офіс 155 кв.м з меблями та окремим входом. Бульвар Лесі Українки, 7-Б. Центр Києва, Печерськ. Сучасний ЖК преміум сегменту 2012 року (монолітно-цегляний). Нежитловий фонд. 3 поверх. Окрема вхідна група для нежитлових приміщень. Планування: 2 Зали/Open Space: 98 м² та 32 м², кабінет 14 м², обладнана кухня, 2 санвузли. Ремонт2024 року, сучасний LOFT з меблями (комфортно для 15 працівників). Автономне опалення та система центрального кондиціювання. LED освітлення, пожежна та охоронна сигналізація, лічильники на все. Окремий вхід, Цілодобовий доступ (24/7). Вікна на фасад та у тихий двір будинку. Під будннком підземний дворівневий паркінг (доступні паркомісця). 10 хвилин пішки до метро Кловська, Печерська та Палац Спорту.
Скачать .pdf

Посредник

Сергій

Обновлено: 5 Ноября 2025
Код объекта: W-7420330
CAPTCHA CAPTCHA на основе изображений
Введите символы, изображенные на рисунке.

Пожаловаться на объявление

W-7420330 |

Укажите причину жалобы

Максимальное количество символов 500
CAPTCHA CAPTCHA на основе изображений
Введите символы, изображенные на рисунке.

Схожі оголошення