Зарегистрироваться /

Аренда Магазина ул. Багалия Дмитрия (Пожарского) 4 в Киеве / W-7420262

Коммерческая недвижимость
Цена:
38 000 грн.
/месяц
$
893 $ (1$ = 42.5 грн.)
771 € (1€ = 49.35 грн.)
Кол-во комнат:
6
Профиль:
Площадь:
125 м²
Этаж/Этажность:
1/8
Цена за м²:
304 грн.
Материал стен:
Кирпич
Ремонт (состояние):
с евроремонтом
Парковка:
да
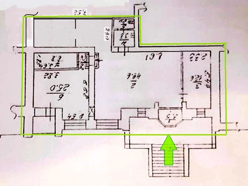
Без комісії. Торг. Оренда нежитлового приміщення 125 м.кв. під магазин, кафе, аптеку, сферу послуг, офіс, клініку, спортивний заклад, навчальну студію… - Київ, Дніпровський р-н, вул. Д. Багалія (Пожарського) 4, орієнтир – метро Дарниця, Соцмісто - 1-й поверх сучасного будинку, окремий вхід; - Оточення – житлова забудова – багато потенційних споживачів; - Фасад приміщення виходить на дорогу, паркінг біля входу; - Площа 125 м.кв., висота стель 3 м.; - Планування: два торгові зали 50 і 12 м.кв. (можна об’єднати), плюс зали 30 м.кв., 25 м.кв., санвузол; - Електрична потужність 20 кВт; - В приміщенні дві мокрих точки. - Витяжки на дах немає. - Опалення автономне – вигідно, кондиціонери, бойлер, сигналізація - Без комісії для орендаря
Скачать .pdf

Владелец

Vladislav

Обновлено: 25 Ноября 2025
Код объекта: W-7420262
CAPTCHA CAPTCHA на основе изображений
Введите символы, изображенные на рисунке.

Пожаловаться на объявление

W-7420262 |

Укажите причину жалобы

Максимальное количество символов 500
CAPTCHA CAPTCHA на основе изображений
Введите символы, изображенные на рисунке.

Схожі оголошення

  • Аренда Офиса ул. Сверстюка Евгения (Расковой Марины) 2а в Киеве / W-7423078 (Офис, ул. Сверстюка Евгения (Расковой Марины)) 36 000 грн./месяц

    Аренда Офиса ул. Сверстюка Евгения (Расковой Марины) 2а в Киеве / W-7423078

  • Аренда Офиса Соборности просп. (Воссоединения) 30а в Киеве / W-7402625 (Офис, Соборности просп. (Воссоединения)) 41 500 грн./месяц

    Аренда Офиса Соборности просп. (Воссоединения) 30а в Киеве / W-7402625