Зарегистрироваться /

Аренда Офиса ул. Болсуновская (Струтинского Сергея) в Киеве / W-7419924

Коммерческая недвижимость
Цена:
51 500 грн.
/месяц
$
1 220 $ (1$ = 42.2 грн.)
1 030 € (1€ = 49.9 грн.)
Кол-во комнат:
3
Профиль:
Площадь:
160 м²
Этаж:
3
Цена за м²:
321 грн.
Ремонт (состояние):
с косметическим ремонтом
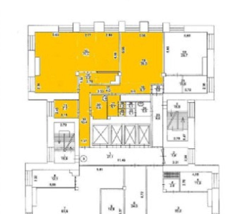
Без комісії! Оренда офісу 160 м2 в Печерському районі по вулиці Болсуновська, піша доступність до метро Дружби народів. Приміщення розташовано на 3 поверсі, планування: Open space, 2 кабінети, санвузол з душовою кабіною, приміщення під кухню. Офісний ремонт, без меблів. Оснащене кондиціонуванням, в будівлі СКД, пожежна сигналізація, швидкісні ліфти, цілодобова фізична охорона, доступ 24/7. Оренда - 320 грн/м2 з урахуванням ПДВ, додатково сплачуються комунальні та сервісні платежі. Код оголошення RC-217-387.
Скачать .pdf

Посредник

ALAN

Обновлено: 26 Декабря 2025
Код объекта: W-7419924
CAPTCHA CAPTCHA на основе изображений
Введите символы, изображенные на рисунке.

Пожаловаться на объявление

W-7419924 |

Укажите причину жалобы

Максимальное количество символов 500
CAPTCHA CAPTCHA на основе изображений
Введите символы, изображенные на рисунке.

Схожі оголошення

  • Аренда Офиса ул. Городецкого Архитектора в Киеве / G-622853 (Офис, ул. Городецкого Архитектора) 50 000 грн./месяц

    Аренда Офиса ул. Городецкого Архитектора в Киеве / G-622853

  • Аренда Салона красоты ул. Михновского Николая бульвар (Дружбы Народов бульвар) 30/1б в Киеве / W-7427695 (Салон красоты, ул. Михновского Николая бульвар (Дружбы Народов бульвар)) 50 000 грн./месяц

    Аренда Салона красоты ул. Михновского Николая бульвар (Дружбы Народов бульвар) 30/1б в Киеве / W-7427695

  • Аренда Офиса ул. Грушевского Михаила в Киеве / N-1698 (Офис, ул. Грушевского Михаила) 50 000 грн./месяц

    Аренда Офиса ул. Грушевского Михаила в Киеве / N-1698

  • Аренда Офиса ул. Деловая (Димитрова) 2 в Киеве / W-7409246 (Офис, ул. Деловая (Димитрова)) 50 600* грн./месяц

    Аренда Офиса ул. Деловая (Димитрова) 2 в Киеве / W-7409246

  • Аренда Офиса ул. Богомольца Академика 7/14 в Киеве / W-7400133 (Офис, ул. Богомольца Академика) 48 000 грн./месяц

    Аренда Офиса ул. Богомольца Академика 7/14 в Киеве / W-7400133

  • Аренда Офиса Печерский спуск 18 в Киеве / W-7366275 (Офис, Печерский спуск) 50 000 грн./месяц

    Аренда Офиса Печерский спуск 18 в Киеве / W-7366275

  • Аренда Нежилого помещения Кловский спуск в Киеве / P-31744 (Нежилое помещение, Кловский спуск) 54 900* грн./месяц

    Аренда Нежилого помещения Кловский спуск в Киеве / P-31744

  • Аренда Офисно-складское помещение ул. Генерала Алмазова (Кутузова) в Киеве / Q-3572 (Офисно-складское помещение, ул. Генерала Алмазова (Кутузова)) 53 300 грн./месяц

    Аренда Офисно-складское помещение ул. Генерала Алмазова (Кутузова) в Киеве / Q-3572

  • Аренда Офиса ул. Предславинская в Киеве / G-676366 (Офис, ул. Предславинская) 51 000 грн./месяц

    Аренда Офиса ул. Предславинская в Киеве / G-676366

  • Аренда Офиса ул. Коновальца Евгения (Щорса) 32 в Киеве / W-7425644 (Офис, ул. Коновальца Евгения (Щорса)) 49 000 грн./месяц

    Аренда Офиса ул. Коновальца Евгения (Щорса) 32 в Киеве / W-7425644

  • Аренда Офиса ул. Большая Васильковская (Красноармейская) в Киеве / H-1907 (Офис, ул. Большая Васильковская (Красноармейская)) 52 800* грн./месяц

    Аренда Офиса ул. Большая Васильковская (Красноармейская) в Киеве / H-1907

  • Аренда Нежилого помещения ул. Верхогляда Андрея (Драгомирова Михаила) в Киеве / P-32206 (Нежилое помещение, ул. Верхогляда Андрея (Драгомирова Михаила)) 46 400* грн./месяц

    Аренда Нежилого помещения ул. Верхогляда Андрея (Драгомирова Михаила) в Киеве / P-32206