Зарегистрироваться /

Аренда Офиса ул. Семьи Праховых (Гайдара) в Киеве / W-7419363

Коммерческая недвижимость
Цена:
153 000* грн.
/месяц
$
3 550 $ (1$ = 43.1 грн.)
2 960 € (1€ = 51.8 грн.)
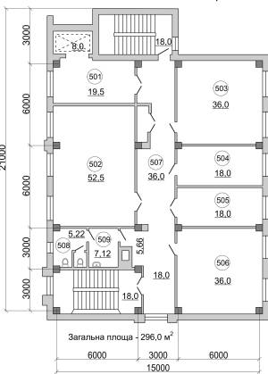
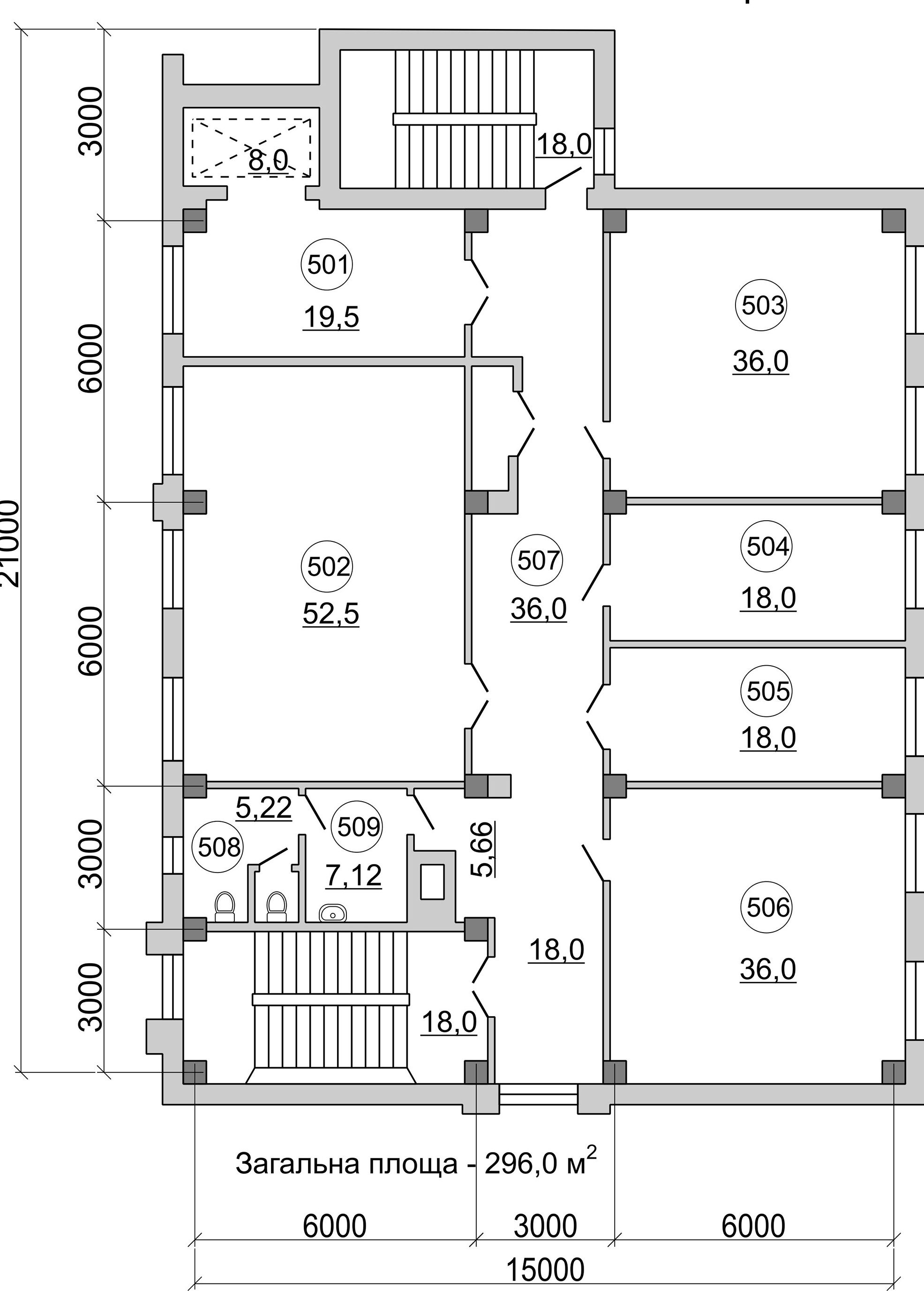
0% Від власника (без комісійних) Метро Вокзальна, Олімпійська, Університет Окремий офісний блок. Кабінетний формат. Можливе збільшення або зменшення площі. Можливе меблювання (або без). Світлі просторі приміщення. Метро Вокзальна (10 хвилин) , Олімпійська (15 хвилин), Університет (20 хвилин) Ціна враховує усі платежі (з ПДВ) окрім лічильників. Звертайтесь для узгодження перегляду. BC00422
Скачать .pdf

Посредник

Відділ оренди

Обновлено: 28 Января 2026
Код объекта: W-7419363
CAPTCHA CAPTCHA на основе изображений
Введите символы, изображенные на рисунке.

Пожаловаться на объявление

W-7419363 |

Укажите причину жалобы

Максимальное количество символов 500
CAPTCHA CAPTCHA на основе изображений
Введите символы, изображенные на рисунке.

Схожі оголошення

  • Аренда Нежилого помещения Лобановского просп. (Краснозвездный просп.) в Киеве / H-39300 (Нежилое помещение, Лобановского просп. (Краснозвездный просп.)) 146 000* грн./месяц

    Аренда Нежилого помещения Лобановского просп. (Краснозвездный просп.) в Киеве / H-39300

  • Аренда Офиса Голосеевский проспект (40-летия Октября просп.) в Киеве / W-7218337 (Офис, Голосеевский проспект (40-летия Октября просп.)) 142 000 грн./месяц

    Аренда Офиса Голосеевский проспект (40-летия Октября просп.) в Киеве / W-7218337

  • Аренда Офиса ул. Саксаганского в Киеве / G-1017222 (Офис, ул. Саксаганского) 138 000* грн./месяц

    Аренда Офиса ул. Саксаганского в Киеве / G-1017222

  • Аренда Офиса ул. Большая Васильковская (Красноармейская) в Киеве / W-7403672 (Офис, ул. Большая Васильковская (Красноармейская)) 151 000* грн./месяц

    Аренда Офиса ул. Большая Васильковская (Красноармейская) в Киеве / W-7403672

  • Аренда Нежилого помещения ул. Антоновича Владимира (Горького) в Киеве / B-108130 (Нежилое помещение, ул. Антоновича Владимира (Горького)) 151 000* грн./месяц

    Аренда Нежилого помещения ул. Антоновича Владимира (Горького) в Киеве / B-108130

  • Аренда Офиса ул. Антоновича Владимира (Горького) в Киеве / W-7200327 (Офис, ул. Антоновича Владимира (Горького)) 162 000* грн./месяц

    Аренда Офиса ул. Антоновича Владимира (Горького) в Киеве / W-7200327

  • Аренда Офиса ул. Саксаганского 37 в Киеве / W-7426823 (Офис, ул. Саксаганского) 151 000* грн./месяц

    Аренда Офиса ул. Саксаганского 37 в Киеве / W-7426823

  • Аренда Офиса ул. Антоновича Владимира (Горького) 157 в Киеве / W-7411311 (Офис, ул. Антоновича Владимира (Горького)) 151 000* грн./месяц

    Аренда Офиса ул. Антоновича Владимира (Горького) 157 в Киеве / W-7411311

  • Аренда Нежилого помещения ул. Саксаганского в Киеве / C-99860 (Нежилое помещение, ул. Саксаганского) 155 000* грн./месяц

    Аренда Нежилого помещения ул. Саксаганского в Киеве / C-99860

  • Аренда Офиса ул. Большая Васильковская (Красноармейская) в Киеве / P-32334 (Офис, ул. Большая Васильковская (Красноармейская)) 157 000* грн./месяц

    Аренда Офиса ул. Большая Васильковская (Красноармейская) в Киеве / P-32334

  • Аренда Офиса ул. Антоновича Владимира (Горького) 23 в Киеве / W-7419929 (Офис, ул. Антоновича Владимира (Горького)) 142 000* грн./месяц

    Аренда Офиса ул. Антоновича Владимира (Горького) 23 в Киеве / W-7419929

  • Аренда Офиса ул. Большая Васильковская (Красноармейская) в Киеве / P-32333 (Офис, ул. Большая Васильковская (Красноармейская)) 158 000* грн./месяц

    Аренда Офиса ул. Большая Васильковская (Красноармейская) в Киеве / P-32333