Зарегистрироваться /

Продажа квартиры ул. Верхний Вал 50 в Киеве / W-7419186

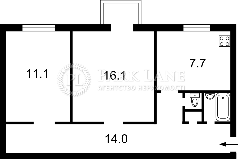
2-комнатная квартира
Цена:
5 195 000* грн.
$
120 000 $ (1$ = 43.29 грн.)
101 000 € (1€ = 51.4 грн.)
Кол-во комнат:
Площадь (общая/жилая/кухни):
55/27/8
Этаж/Этажность:
2/5
Тип (серия) дома:
Доревол.
Материал стен:
Кирпич
Тип санузла:
Совместный
Ремонт (состояние):
с евроремонтом
Верхній Вал, 50. Тихе місце на Подолі. Будинок у дворі (друга лінія), заїзд у двір через шлагбаум. Висота стелі 3,15м, газ. За квартирою закріплене паркомісце у дворі. Дві окремі кімнати, відкритий балкон, кухня, сумісний санвузол, гардеробна кімната (кладова). Квартира із ремонтом, укомплектована меблями та побутовою технікою (тепла підлога, бойлер, холодильник, пральна та посудомийна машина, 2 кондиціонера), транспорт: ст.М"Контрактова площа"- 5 хвилин пішки.
Скачать .pdf

Посредник

Kiriienko Oksana

Обновлено: 30 Января 2026
Код объекта: W-7419186
CAPTCHA CAPTCHA на основе изображений
Введите символы, изображенные на рисунке.

Пожаловаться на объявление

W-7419186 |

Укажите причину жалобы

Максимальное количество символов 500
CAPTCHA CAPTCHA на основе изображений
Введите символы, изображенные на рисунке.

Схожі оголошення

  • Продажа квартиры ул. Некрасова Виктора (Северо-Сырецкая) 10 в Киеве / W-7435714 (ул. Некрасова Виктора (Северо-Сырецкая), 10) 4 848 000* грн.

    Продажа квартиры ул. Некрасова Виктора (Северо-Сырецкая) 10 в Киеве / W-7435714

  • Продажа квартиры ул. Набережно-Крещатицкая 35а в Киеве / G-923676 (ул. Набережно-Крещатицкая, 35а) 5 195 000* грн.

    Продажа квартиры ул. Набережно-Крещатицкая 35а в Киеве / G-923676

  • Продажа квартиры ул. Кирилловская (Фрунзе) 37 в Киеве / F-43985 (ул. Кирилловская (Фрунзе), 37) 4 957 000* грн.

    Продажа квартиры ул. Кирилловская (Фрунзе) 37 в Киеве / F-43985

  • Продажа квартиры ул. Выговского Ивана (Гречко Маршала) 10м в новостройке в Киеве / W-7426489 (ул. Выговского Ивана (Гречко Маршала), 10м) 5 325 000* грн.

    Продажа квартиры ул. Выговского Ивана (Гречко Маршала) 10м в новостройке в Киеве / W-7426489

  • Продажа квартиры ул. Выговского Ивана (Гречко Маршала) 40/12 в новостройке в Киеве / W-7279546 (ул. Выговского Ивана (Гречко Маршала), 40/12) 5 195 000* грн.

    Продажа квартиры ул. Выговского Ивана (Гречко Маршала) 40/12 в новостройке в Киеве / W-7279546

  • Продажа квартиры ул. Олеся Александра 2б в новостройке в Киеве / W-7292042 (ул. Олеся Александра, 2б) 5 411 000* грн.

    Продажа квартиры ул. Олеся Александра 2б в новостройке в Киеве / W-7292042

  • Продажа квартиры ул. Хорива 33 в Киеве / Q-24202 (ул. Хорива, 33) 4 978 000* грн.

    Продажа квартиры ул. Хорива 33 в Киеве / Q-24202

  • Продажа квартиры ул. Хорива 45/24 в Киеве / W-7417713 (ул. Хорива, 45/24) 4 848 000* грн.

    Продажа квартиры ул. Хорива 45/24 в Киеве / W-7417713

  • Продажа квартиры ул. Сагайдачного Петра 18 в Киеве / Q-17661 (ул. Сагайдачного Петра, 18) 5 541 000 грн.

    Продажа квартиры ул. Сагайдачного Петра 18 в Киеве / Q-17661

  • Продажа квартиры ул. Константиновская 27 в Киеве / W-7124196 (ул. Константиновская, 27) 4 935 000* грн.

    Продажа квартиры ул. Константиновская 27 в Киеве / W-7124196

  • Продажа квартиры ул. Олеся Александра 10 в Киеве / B-109433 (ул. Олеся Александра, 10) 5 195 000* грн.

    Продажа квартиры ул. Олеся Александра 10 в Киеве / B-109433

  • Продажа квартиры ул. Набережно-Рыбальская 11 в Киеве / G-769782 (ул. Набережно-Рыбальская, 11) 5 628 000* грн.

    Продажа квартиры ул. Набережно-Рыбальская 11 в Киеве / G-769782