Зарегистрироваться /

Аренда Офиса ул. Институтская 24 в Киеве / W-7419097

Коммерческая недвижимость
Цена:
30 000 грн.
/месяц
$
714 $ (1$ = 42.07 грн.)
615 € (1€ = 48.8 грн.)
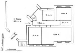
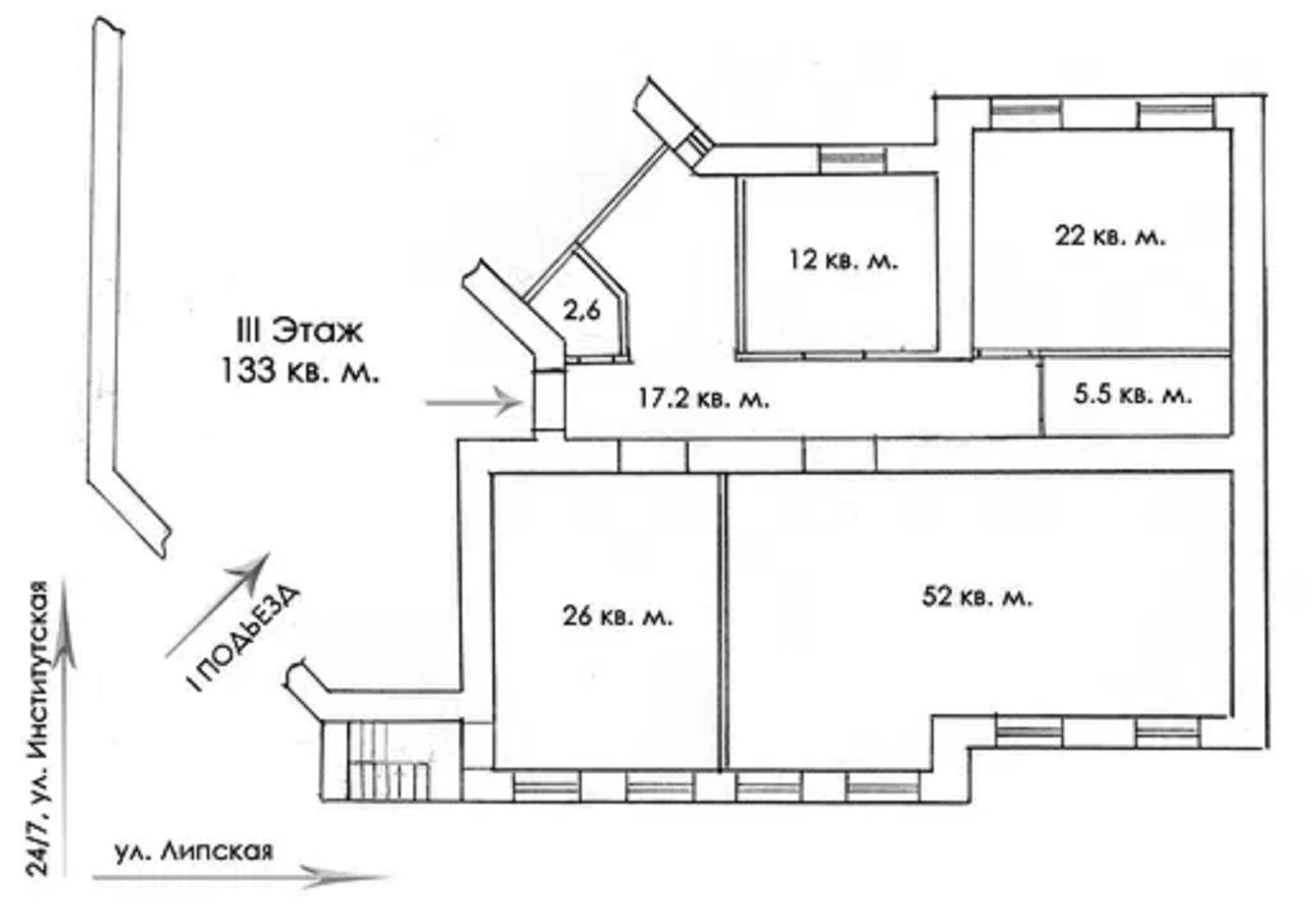
Арсенальна метро,вул Інституська 24\7, офіс 3 поверх ліфт,житловий фонд,133м добрий стан,кондіционер,4 кабінета,кухня, 2с\в. БЕЗ МЕБЛІВ, метро 10 хв.30000грн + комунальні.(Комісія 50%)
Скачать .pdf

Посредник

Олександр

Обновлено: 2 Ноября 2025
Код объекта: W-7419097
CAPTCHA CAPTCHA на основе изображений
Введите символы, изображенные на рисунке.

Пожаловаться на объявление

W-7419097 |

Укажите причину жалобы

Максимальное количество символов 500
CAPTCHA CAPTCHA на основе изображений
Введите символы, изображенные на рисунке.

Схожі оголошення