Зарегистрироваться /

Аренда Офиса Науки просп. 60 в Киеве / W-7417350

Коммерческая недвижимость
Цена:
22 500 грн.
/месяц
$
533 $ (1$ = 42.2 грн.)
456 € (1€ = 49.35 грн.)
Адрес:
Профиль:
Площадь:
75 м²
Цена за м²:
300 грн.
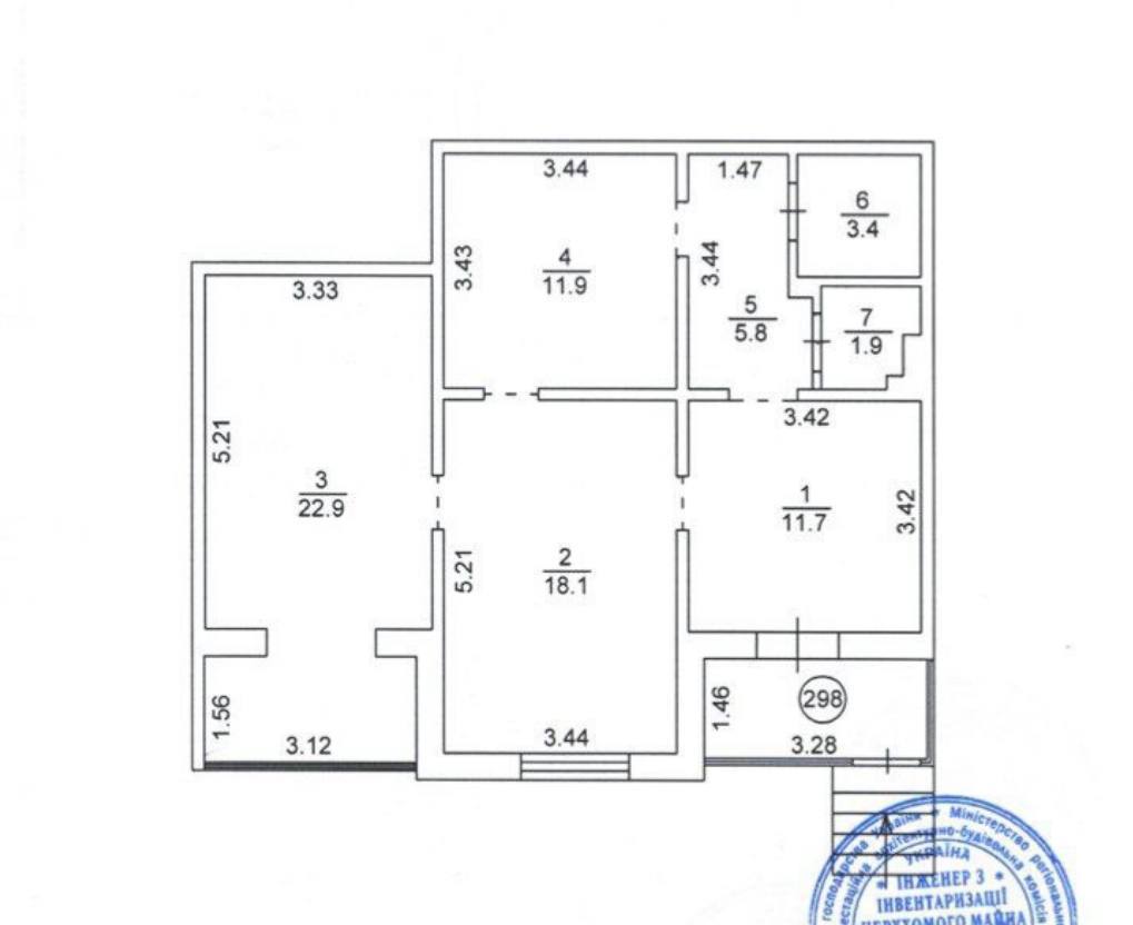
Оренда приміщення — м. Київ, Голосіївський район, просп. Науки, 60-А Здається в оренду нежитлове приміщення на першому поверсі будівлі за адресою проспект Науки, 60-А. Площа — 75 м². Зручне планування: хол + 3 окремі кабінети. Є окремий вхід із вулиці (див. фото). Доступний відеоогляд приміщення — можу надіслати за запитом. Основна інформація: • Площа: 75 м² • Перший поверх • Нежитловий фонд • Окремий вхід • 2 кондиціонери • Ремонтні канікули • Зручний під’їзд, є можливість паркування • Вартість оренди — 22 500 грн/міс. • Без комісії для орендаря! Підійде для офісу, салону краси, медичного або навчального центру.
Скачать .pdf

Посредник

Марія

Обновлено: 27 Октября 2025
Код объекта: W-7417350
CAPTCHA CAPTCHA на основе изображений
Введите символы, изображенные на рисунке.

Смотрите также:

Пожаловаться на объявление

W-7417350 |

Укажите причину жалобы

Максимальное количество символов 500
CAPTCHA CAPTCHA на основе изображений
Введите символы, изображенные на рисунке.

Схожі оголошення