Зарегистрироваться /

Аренда Офиса Матущака Юрія пер. (Радищева пер.) в Киеве / W-7416537

Коммерческая недвижимость
Цена:
198 000* грн.
/месяц
$
4 580 $ (1$ = 43.29 грн.)
3 850 € (1€ = 51.45 грн.)
Профиль:
Площадь:
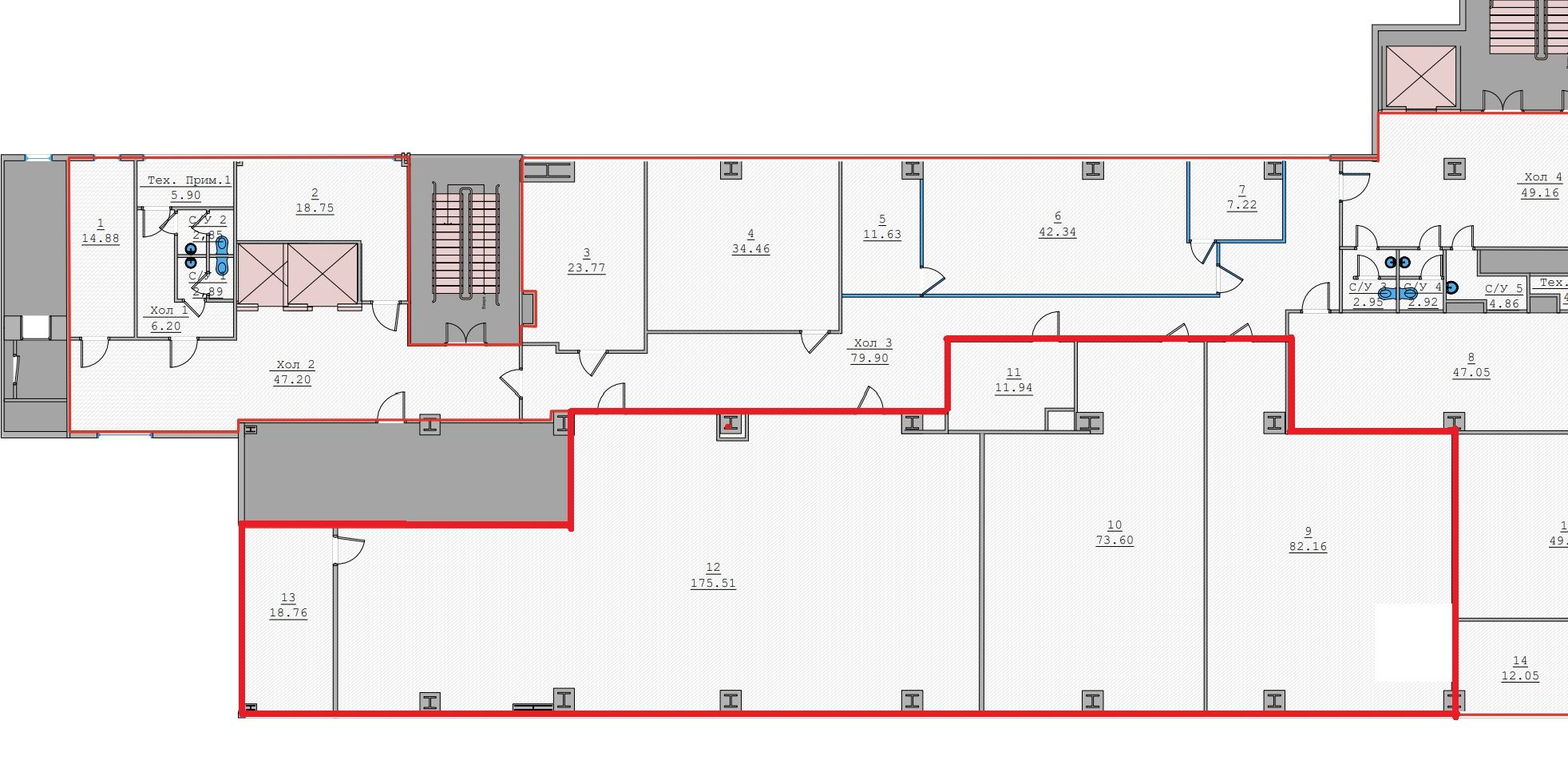
398 м²
Цена за м²:
498 грн.
Від власника (без комісійних) Офісний блок. Генератор. Сховище. Більше 10 провайдерів зв'язку, оптико-волоконний інтернет. Автономне опалення. Електроенергія – постійно. Можливе збільшення або зменшення площі Приміщення в бізнес-центрі В класу . Метро Берестейська 15-20 хвилин пішки. На території бізнес-центру працює продуктовий магазин, кафе, ресторан швидкого харчування, салон краси, аптека, банкомати, а також, розташована велика автостоянка. Цілодобова охорона, відеонагляд, система контролю доступа, адресна пожежна сигналізація, система оповіщення при пожежі, димовидалення. 3-х кратний обмін повітря за годину, рекуперація, окремі приточні установки на кожному поверсі. Центральна система чиллер-фанкоіл, індивідуальне регулювання температури на кожних 30м2, режим freecool. Звертайтесь для підбору та узгодження перегляду. BC00358
Скачать .pdf

Посредник

Відділ оренди

Обновлено: 14 Февраля 2026
Код объекта: W-7416537
CAPTCHA CAPTCHA на основе изображений
Введите символы, изображенные на рисунке.

Пожаловаться на объявление

W-7416537 |

Укажите причину жалобы

Максимальное количество символов 500
CAPTCHA CAPTCHA на основе изображений
Введите символы, изображенные на рисунке.

Схожі оголошення