Зарегистрироваться /

Аренда Мастерской ул. Новоконстантиновская 18 в Киеве / W-7414393

Коммерческая недвижимость
Цена:
80 000 грн.
/месяц
$
1 920 $ (1$ = 41.67 грн.)
1 650 € (1€ = 48.5 грн.)
Кол-во комнат:
5
Профиль:
Площадь:
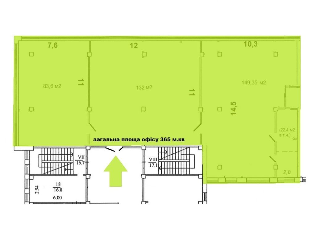
365 м²
Этаж/Этажность:
2/4
Цена за м²:
219 грн.
Ремонт (состояние):
с ремонтом
Парковка:
да
Без комісії для орендаря. Оренда приміщення під офіс, майстерню, фотостудію, спортивні заклади. - Київ, Оболонський р-н, Новокостянтинівська 18, орієнтир Метро Т. Шевченка, Почайна. - Приміщення розташоване на 2-му поверсі. - Загальна площа блока 365 м. кв. - Планування: окремий блок з трьома залами, Н = 2,9 м, санвузол на поверсі - Ремонт в стилі лофт. - Кондиціювання, опалення електричне. Електрика без відключень, потужність 50 кВт. - Паркування гостьове. - В будівлі є кафе-їдальня, безпечне сховище. - Поряд зупинки транспорту, швидкий доступ до метро Почайна, Т. Шевченка - Оренда вказана з ПДВ. Додатково комунальні платежі.
Скачать .pdf

Посредник

Vladislav

Обновлено: 9 Октября 2025
Код объекта: W-7414393
CAPTCHA CAPTCHA на основе изображений
Введите символы, изображенные на рисунке.

Пожаловаться на объявление

W-7414393 |

Укажите причину жалобы

Максимальное количество символов 500
CAPTCHA CAPTCHA на основе изображений
Введите символы, изображенные на рисунке.

Схожі оголошення