Зарегистрироваться /

Продажа квартиры ул. Николаева Архитектора 9а в Киеве / W-7413551

2-комнатная квартира
Цена:
2 678 000* грн.
$
63 500 $ (1$ = 42.17 грн.)
54 400 € (1€ = 49.2 грн.)
Кол-во комнат/Расположение:
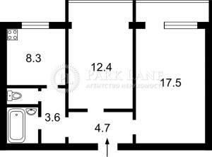
Площадь (общая/жилая/кухни):
57.4/34/8.3
Этаж/Этажность:
5/16
Тип (серия) дома:
серия КТ
Материал стен:
Керамзито-бетон
Материал пола:
Паркет
Ремонт (состояние):
с ремонтом
мебель
балкон
Затишна двокімнатна квартира з ремонтом у зеленому районі Києва — вул. Архітектора Ніколаєва, 9А. Тут завжди спокійно: тихі вулиці, чистий двір, доглянутий будинок з консьєржем. Поруч — парк, де можна пити каву на лавці чи вигулювати песика. Це місце, де легко дихається. У квартирі — світлі кімнати, велика кухня, дві лоджії, натуральна підлога, охайний ремонт. Ідеальне місце для життя або інвестиції. У дворі завжди знайдеться місце для авто, а поруч — магазини, парк для прогулянок і справжній затишок великого міста. Телефонуйте — покажемо квартиру у зручний для вас час.
Скачать .pdf

Посредник

Аліса

Обновлено: 28 Октября 2025
Код объекта: W-7413551
CAPTCHA CAPTCHA на основе изображений
Введите символы, изображенные на рисунке.

Пожаловаться на объявление

W-7413551 |

Укажите причину жалобы

Максимальное количество символов 500
CAPTCHA CAPTCHA на основе изображений
Введите символы, изображенные на рисунке.

Схожі оголошення

  • Продажа квартиры ул. Экстер Александры (Цветаевой Марины) 9а в Киеве / W-7418958 (ул. Экстер Александры (Цветаевой Марины), 9а) 2 615 000* грн.

    Продажа квартиры ул. Экстер Александры (Цветаевой Марины) 9а в Киеве / W-7418958

  • Продажа квартиры Красной Калины просп (Маяковского Владимира просп.) 7а в Киеве / W-7418910 (Красной Калины просп (Маяковского Владимира просп.), 7а) 2 425 000* грн.

    Продажа квартиры Красной Калины просп (Маяковского Владимира просп.) 7а в Киеве / W-7418910

  • Продажа квартиры Шухевича Романа просп. (Ватутина Генерала просп.) 22а в Киеве / W-7419113 (Шухевича Романа просп. (Ватутина Генерала просп.), 22а) 2 636 000* грн.

    Продажа квартиры Шухевича Романа просп. (Ватутина Генерала просп.) 22а в Киеве / W-7419113

  • Продажа квартиры Красной Калины просп (Маяковского Владимира просп.) 4 в Киеве / W-7415278 (Красной Калины просп (Маяковского Владимира просп.), 4) 2 859 000* грн.

    Продажа квартиры Красной Калины просп (Маяковского Владимира просп.) 4 в Киеве / W-7415278

  • Продажа квартиры Высоцкого Владимира бульв. 6б в Киеве / G-814496 (Высоцкого Владимира бульв., 6б) 2 741 000* грн.

    Продажа квартиры Высоцкого Владимира бульв. 6б в Киеве / G-814496

  • Продажа квартиры ул. Закревского Николая 101б в Киеве / G-810477 (ул. Закревского Николая, 101б) 2 943 000* грн.

    Продажа квартиры ул. Закревского Николая 101б в Киеве / G-810477

  • Продажа квартиры Красной Калины просп (Маяковского Владимира просп.) 74/9 в Киеве / G-429589 (Красной Калины просп (Маяковского Владимира просп.), 74/9) 2 509 000* грн.

    Продажа квартиры Красной Калины просп (Маяковского Владимира просп.) 74/9 в Киеве / G-429589

  • Продажа квартиры Лесной просп. 6а в Киеве / G-821317 (Лесной просп., 6а) 2 868 000* грн.

    Продажа квартиры Лесной просп. 6а в Киеве / G-821317

  • Продажа квартиры Лесной просп. 5 в Киеве / Q-15711 (Лесной просп., 5) 2 868 000* грн.

    Продажа квартиры Лесной просп. 5 в Киеве / Q-15711