Зарегистрироваться /

Продажа квартиры ул. Кошица 7 в Киеве / W-7412507

2-комнатная квартира
Цена:
3 494 000* грн.
$
84 500 $ (1$ = 41.35 грн.)
71 700 € (1€ = 48.7 грн.)
Кол-во комнат/Расположение:
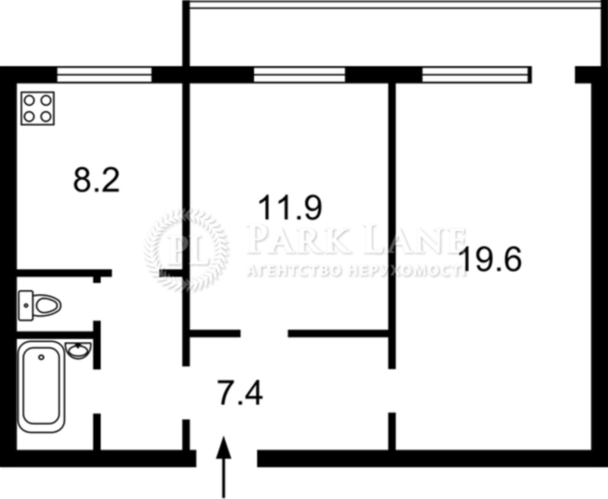
Площадь (общая/жилая/кухни):
53/31.5/8.2
Этаж/Этажность:
5/10
Тип (серия) дома:
96 серия
Материал стен:
Керамзито-бетон
Материал пола:
Комбинир.
Материал перекрытий:
Железобетон
Количество, тип санузлов:
2, Разд.
Парковка:
да
Ремонт (состояние):
с евроремонтом
мебель
балкон
Пропонуємо до продажу затишну 2-кімнатну біля м. Харьківська, Кошиця, 7. Цей об'єкт ідеально підходить як для комфортного проживання сім'ї, так і для інвестицій з потенціалом стабільного доходу від оренди. Під'їзди завжди охайні, є шість виходів для зручності, а також безкоштовна парковка біля будинку. Квартира на 5-му поверсі має загальну площу 53 м², з житловою 31,5 м² та кухнею 8,2 м². Роздільні кімнати дозволяють ефективно організувати простір: окрема спальня з ортопедичним матрацом для здорового сну, вітальня для сімейних вечорів. Великий функціональний балкон з теплою підлогою додає практичності. Санвузол роздільний: душова кабіна, гігієнічний душ у туалеті, тепла підлога в ванній, туалеті та на балконі для максимального комфорту в холодну пору. Квартира в гарному стані, з необхідною технікою: газова варочна поверхня, духова шафа, пральна машина, холодильник та два кондиціонери. Локація – ключова перевага: всього 10 хвилин пішки до метро Харківська.
Скачать .pdf

Посредник

Ірина

Обновлено: 1 Октября 2025
Код объекта: W-7412507
CAPTCHA CAPTCHA на основе изображений
Введите символы, изображенные на рисунке.

Пожаловаться на объявление

W-7412507 |

Укажите причину жалобы

Максимальное количество символов 500
CAPTCHA CAPTCHA на основе изображений
Введите символы, изображенные на рисунке.

Схожі оголошення

  • Продажа квартиры ул. Пчелки Елены 2 в Киеве / W-7409586 (ул. Пчелки Елены, 2) 3 763 000* грн.

    Продажа квартиры ул. Пчелки Елены 2 в Киеве / W-7409586

  • Продажа квартиры ул. Гмыри Бориса 17 в Киеве / G-1962368 (ул. Гмыри Бориса, 17) 3 722 000* грн.

    Продажа квартиры ул. Гмыри Бориса 17 в Киеве / G-1962368

  • Продажа квартиры ул. Днепровская наб. 15к в Киеве / W-7410968 (ул. Днепровская наб., 15к) 3 432 000* грн.

    Продажа квартиры ул. Днепровская наб. 15к в Киеве / W-7410968

  • Продажа квартиры ул. Днепровская наб. 17к в новостройке в Киеве / W-7404744 (ул. Днепровская наб., 17к) 3 453 000* грн.

    Продажа квартиры ул. Днепровская наб. 17к в новостройке в Киеве / W-7404744

  • Продажа квартиры ул. Драгоманова 1б в новостройке в Киеве / W-7410516 (ул. Драгоманова, 1б) 3 722 000* грн.

    Продажа квартиры ул. Драгоманова 1б в новостройке в Киеве / W-7410516

  • Продажа квартиры Григоренко Петра просп. 22/20 в Киеве / Q-25705 (Григоренко Петра просп., 22/20) 3 515 000* грн.

    Продажа квартиры Григоренко Петра просп. 22/20 в Киеве / Q-25705

  • Продажа квартиры ул. Вербицкого Архитектора 1в в Киеве / W-7347972 (ул. Вербицкого Архитектора, 1в) 3 473 000* грн.

    Продажа квартиры ул. Вербицкого Архитектора 1в в Киеве / W-7347972

  • Продажа квартиры ул. Днепровская наб. 15ж в Киеве / G-810119 (ул. Днепровская наб., 15ж) 3 515 000* грн.

    Продажа квартиры ул. Днепровская наб. 15ж в Киеве / G-810119

  • Продажа квартиры ул. Ахматовой 16в в Киеве / W-7402439 (ул. Ахматовой, 16в) 3 556 000* грн.

    Продажа квартиры ул. Ахматовой 16в в Киеве / W-7402439

  • Продажа квартиры ул. Причальная 5 корпус 11 в Киеве / F-47552 (ул. Причальная, 5 корпус 11) 3 391 000* грн.

    Продажа квартиры ул. Причальная 5 корпус 11 в Киеве / F-47552

  • Продажа квартиры ул. Гмыри Бориса 20 в Киеве / Q-8409 (ул. Гмыри Бориса, 20) 3 238 000* грн.

    Продажа квартиры ул. Гмыри Бориса 20 в Киеве / Q-8409

  • Продажа квартиры Григоренко Петра просп. 11а в Киеве / F-48395 (Григоренко Петра просп., 11а) 3 515 000* грн.

    Продажа квартиры Григоренко Петра просп. 11а в Киеве / F-48395