Зарегистрироваться /

Аренда Офиса ул. Липкивского Василия (Урицкого) 14 в Киеве / W-7411880

Коммерческая недвижимость
Цена:
309 000* грн.
/месяц
$
7 000 $ (1$ = 44.15 грн.)
6 060 € (1€ = 51 грн.)
Профиль:
Площадь:
250 м²
Цена за м²:
1 240 грн.
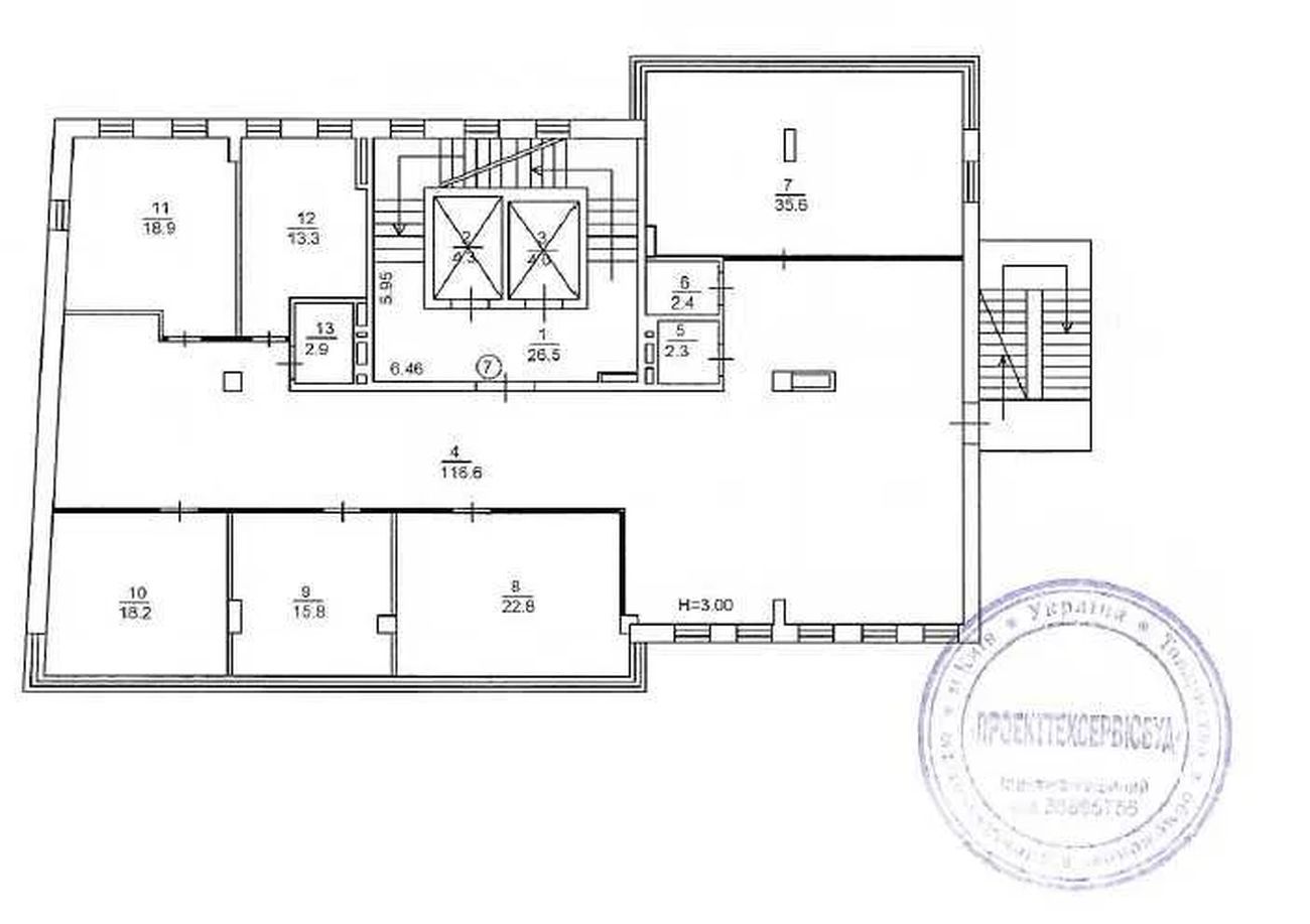
Здається в оренду офісне приміщення, вул. Митрополита Василя Липківського,14, Солом’янський р-н, в пішій ході станція метро Вокзальна, зручна транспортна розв'язка. Офіс розташований на 3-му поверсі (фантастичний краєвид на місто), загальна площа – 248 м2, висота стелі – 2,80 м. Приміщення вже готове до здачі в оренду. Планування: - 6 окремих кабінетів; - опенспейс робочі зони (гнучко змінюються) 116 м2; - зона кухні; -зона рецепції; - 3 санвузла; - серверна; Технічне оснащення: - автономне опалення (електро), вода і каналізація; - світло 24/7 (є генератор на випадок надзвичайної ситуації, яка забезпечує роботу ліфтів, подачу води і опалення та повне функціонування всього офісного приміщення); - кондиціонери; - система вентиляції; - кабінети оснащені системою контролю доступу; -всі кабінети мебльовані. Безкоштовно надається 1 паркомісце на території. Комерційні умови: Орендна плата - 23$/м2 + 5$ експлуатаційні+ комунальні платежі згідно з лічильників. 7000дол
Скачать .pdf

Посредник

Юрій

Обновлено: 20 Марта 2026
Код объекта: W-7411880
CAPTCHA CAPTCHA на основе изображений
Введите символы, изображенные на рисунке.

Пожаловаться на объявление

W-7411880 |

Укажите причину жалобы

Максимальное количество символов 500
CAPTCHA CAPTCHA на основе изображений
Введите символы, изображенные на рисунке.

Схожі оголошення

  • Аренда Офисно-складское помещение Воздушних Сил просп. (Воздухофлотский просп.) 75 в Киеве / W-7425541 (Офисно-складское помещение, Воздушних Сил просп. (Воздухофлотский просп.)) 300 000 грн./месяц

    Аренда Офисно-складское помещение Воздушних Сил просп. (Воздухофлотский просп.) 75 в Киеве / W-7425541

  • Аренда Склада Воздушних Сил просп. (Воздухофлотский просп.) 75 в Киеве / W-7433010 (Склад, Воздушних Сил просп. (Воздухофлотский просп.)) 300 000 грн./месяц

    Аренда Склада Воздушних Сил просп. (Воздухофлотский просп.) 75 в Киеве / W-7433010

  • Аренда Нежилого помещения Воздушних Сил просп. (Воздухофлотский просп.) 75 в Киеве / W-7433044 (Нежилое помещение, Воздушних Сил просп. (Воздухофлотский просп.)) 300 000 грн./месяц

    Аренда Нежилого помещения Воздушних Сил просп. (Воздухофлотский просп.) 75 в Киеве / W-7433044

  • Аренда Бизнес-центра Гавела Вацлава бульв. (Лепсе Ивана) в Киеве / J-32361 (Бизнес-центр, Гавела Вацлава бульв. (Лепсе Ивана)) 318 000* грн./месяц

    Аренда Бизнес-центра Гавела Вацлава бульв. (Лепсе Ивана) в Киеве / J-32361

  • Аренда Офиса ул. Липкивского Василия (Урицкого) 14 в Киеве / W-7441921 (Офис, ул. Липкивского Василия (Урицкого)) 309 000* грн./месяц

    Аренда Офиса ул. Липкивского Василия (Урицкого) 14 в Киеве / W-7441921

  • Аренда Нежилого помещения ул. Эрнста Федора в Киеве / G-376919 (Нежилое помещение, ул. Эрнста Федора) 328 000 грн./месяц

    Аренда Нежилого помещения ул. Эрнста Федора в Киеве / G-376919

  • Аренда Офиса ул. Гетьмана Вадима (Индустриальная) 6 в Киеве / W-7376550 (Офис, ул. Гетьмана Вадима (Индустриальная)) 288 000 грн./месяц

    Аренда Офиса ул. Гетьмана Вадима (Индустриальная) 6 в Киеве / W-7376550

  • Аренда Нежилого помещения ул. Борщаговская в Киеве / G-747714 (Нежилое помещение, ул. Борщаговская) 280 000 грн./месяц

    Аренда Нежилого помещения ул. Борщаговская в Киеве / G-747714

  • Аренда Офиса ул. Амосова Николая в Киеве / W-7421399 (Офис, ул. Амосова Николая) 280 000* грн./месяц

    Аренда Офиса ул. Амосова Николая в Киеве / W-7421399

  • Аренда Отдельно стоящее здание Изяславский пер. (Ватутина пер.) 6 в Киеве / W-7437950 (Отдельно стоящее здание, Изяславский пер. (Ватутина пер.)) 300 000 грн./месяц

    Аренда Отдельно стоящее здание Изяславский пер. (Ватутина пер.) 6 в Киеве / W-7437950

  • Аренда Офиса ул. Гонгадзе (Машиностроительная) в Киеве / G-532201 (Офис, ул. Гонгадзе (Машиностроительная)) 331 000* грн./месяц

    Аренда Офиса ул. Гонгадзе (Машиностроительная) в Киеве / G-532201

  • Аренда Офиса ул. Липкивского Василия (Урицкого) в Киеве / D-40136 (Офис, ул. Липкивского Василия (Урицкого)) 287 000* грн./месяц

    Аренда Офиса ул. Липкивского Василия (Урицкого) в Киеве / D-40136