Зарегистрироваться /

Аренда Офиса ул. Гончара Олеся в Киеве / W-7324568

Коммерческая недвижимость
Цена:
99 400* грн.
/месяц
$
2 350 $ (1$ = 42.3 грн.)
2 010 € (1€ = 49.4 грн.)
Кол-во комнат:
5
Профиль:
Площадь:
212 м²
Этаж/Этажность:
2/5
Цена за м²:
468 грн.
Ремонт (состояние):
с ремонтом
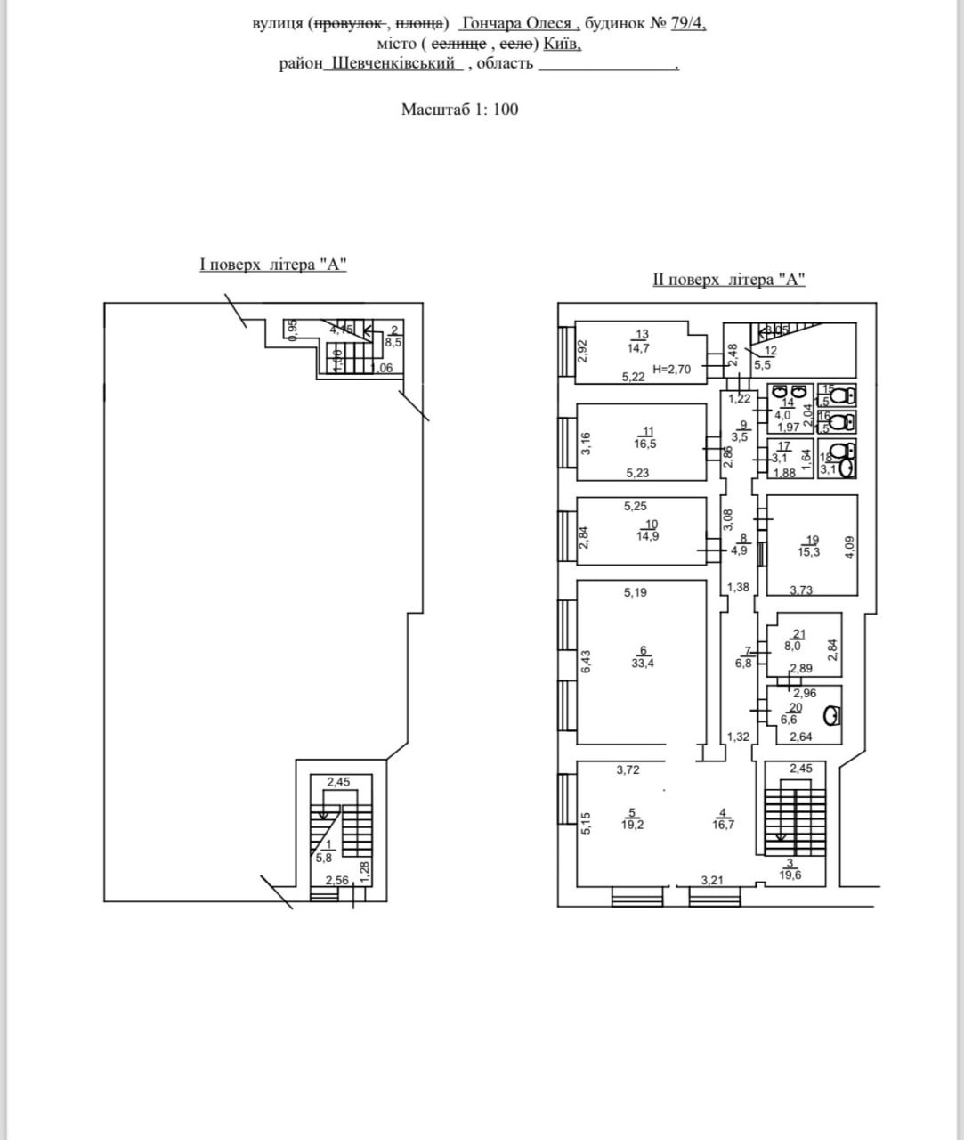
Оренда офісу 212 м2 в центрі Шевченківського району на вулиці Гончара. Окремий вхід, планування: 5 кабінетів, зона рецепції, 4 санвузли, мебльована кухня. Приміщення оснащене кондиціюванням, вентиляцією, пожежною сигналізацією, комп'ютерним розведенням. Новий ремонт, вхід з фасаду будівлі. Додаткові комунальні платежі. Можливо встановлення генератора. Код оголошення RC-182-496.
Скачать .pdf

Посредник

Alan

Обновлено: 9 Декабря 2025
Код объекта: W-7324568
CAPTCHA CAPTCHA на основе изображений
Введите символы, изображенные на рисунке.

Пожаловаться на объявление

W-7324568 |

Укажите причину жалобы

Максимальное количество символов 500
CAPTCHA CAPTCHA на основе изображений
Введите символы, изображенные на рисунке.

Схожі оголошення

  • Аренда Отдельно стоящее здание ул. Липинского Вячеслава (Чапаева) 9 в Киеве / W-7412338 (Отдельно стоящее здание, ул. Липинского Вячеслава (Чапаева)) 90 000 грн./месяц

    Аренда Отдельно стоящее здание ул. Липинского Вячеслава (Чапаева) 9 в Киеве / W-7412338

  • Аренда Офиса Берестейский просп. (Победы просп) 31 в Киеве / W-7400528 (Офис, Берестейский просп. (Победы просп)) 97 300* грн./месяц

    Аренда Офиса Берестейский просп. (Победы просп) 31 в Киеве / W-7400528

  • Аренда Офиса ул. Хмельницкого Богдана в Киеве / Q-9209 (Офис, ул. Хмельницкого Богдана) 106 000* грн./месяц

    Аренда Офиса ул. Хмельницкого Богдана в Киеве / Q-9209

  • Аренда Офиса ул. Хмельницкого Богдана в Киеве / W-7409092 (Офис, ул. Хмельницкого Богдана) 95 000 грн./месяц

    Аренда Офиса ул. Хмельницкого Богдана в Киеве / W-7409092

  • Аренда Нежилого помещения ул. Щербаковского Даниила (Щербакова) в Киеве / Q-23616 (Нежилое помещение, ул. Щербаковского Даниила (Щербакова)) 99 000 грн./месяц

    Аренда Нежилого помещения ул. Щербаковского Даниила (Щербакова) в Киеве / Q-23616

  • Аренда Офиса Шевченко Тараса бульв. 33б в Киеве / W-7422997 (Офис, Шевченко Тараса бульв.) 94 500* грн./месяц

    Аренда Офиса Шевченко Тараса бульв. 33б в Киеве / W-7422997

  • Аренда Нежилого помещения ул. Жилянская в Киеве / Q-10361 (Нежилое помещение, ул. Жилянская) 99 100 грн./месяц

    Аренда Нежилого помещения ул. Жилянская в Киеве / Q-10361

  • Аренда Офиса ул. Ярославов Вал в Киеве / J-30887 (Офис, ул. Ярославов Вал) 105 000* грн./месяц

    Аренда Офиса ул. Ярославов Вал в Киеве / J-30887

  • Аренда Офиса ул. Ярославов Вал 30 в Киеве / W-7356294 (Офис, ул. Ярославов Вал) 106 000* грн./месяц

    Аренда Офиса ул. Ярославов Вал 30 в Киеве / W-7356294

  • Аренда Магазина Берестейский просп. (Победы просп) в Киеве / B-107563 (Магазин, Берестейский просп. (Победы просп)) 103 000 грн./месяц

    Аренда Магазина Берестейский просп. (Победы просп) в Киеве / B-107563

  • Аренда Нежилого помещения ул. Конисского Александра (Тургеневская) в Киеве / P-7059 (Нежилое помещение, ул. Конисского Александра (Тургеневская)) 93 500 грн./месяц

    Аренда Нежилого помещения ул. Конисского Александра (Тургеневская) в Киеве / P-7059

  • Аренда Отдельно стоящее здание ул. Липинского Вячеслава (Чапаева) 9 в Киеве / W-7412337 (Отдельно стоящее здание, ул. Липинского Вячеслава (Чапаева)) 90 000 грн./месяц

    Аренда Отдельно стоящее здание ул. Липинского Вячеслава (Чапаева) 9 в Киеве / W-7412337